Smith Residence

Project Details

Project Name
Smith Residence
Project Types
Single Family
Project Scope
New Construction
Project Status
Built
Size
2,775 ft²

Project Description

Brian MacKay-Lyons, Hon. FAIA’s Smith Residence embodies a few contradictions: It’s simultaneously new, 400-years-old, and timeless; it’s clearly contemporary and yet unapologetically traditional; it’s deeply rural and surprisingly urban. The three-building complex is the latest addition to the quarter-century-in-the-making Shobac complex in Upper Kingsburg, Nova Scotia, designed by the architect’s Halifax-based firm, MacKay-Lyons Sweetapple Architects (MLSA).

The Smith Residence builds on themes explored in MLSA’s nearby Enough House (ARCHITECT, July 2016), where the clients stayed when they first visited MacKay-Lyons to discuss the project. The middle-aged couple from Kentucky, whom he describes as patrons of the arts, sought him out to design a house without knowing where they wanted it to be. “This was very much like an art commission,” he says. “There were very few programmatic constraints.”

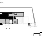
The clients chose a 2-acre site just a stone’s throw from MLSA’s Shobac studio, near the end of a narrow peninsula—about 100 yards separate a pond on the property from the ocean. Two linear main structures—a 20-foot-wide, 1,910-square-foot “day pavilion” with living, dining, and kitchen areas, and a 16-foot-wide, 550-square-foot “night pavilion” with the master bedroom suite—are set along the same northeast-to-southwest axis that has situated local buildings in the area for at least four centuries. “You get a sense of harmony with buildings in the landscape that are miles away,” MacKay-Lyons says.

The diminutive third volume, a 12-foot-wide, 315-square-foot shed, serves as a shared bedroom for the clients’ children. It sits atop a stone wall that runs parallel to the road and protects an east-facing entry courtyard that mostly sees use in the morning.

The house is accessed via a 6-foot-wide stone stair between the two larger structures. In a small plaza at the top of the stairs, the buildings frame a view of the ocean from a stone plinth that sits about 15 feet above the water. “This project is all about procession in the landscape,” MacKay-Lyons says.

The day pavilion is accessed via a narrow passage behind the kitchen at the east end. The dining area in the center of the volume is dominated by a custom-designed table fabricated from local trees; at the west end, the great room cantilevers over the edge of the plinth and offers ocean views through three sides of glazing. A striking stone mantle spanning the 16-foot-wide fireplace weighs in at 5 tons. MacKay-Lyons recalls calling the local quarry and asking for the largest stone in the yard. They sent a picture of one the size of a car. His response? “We’ll take it.”

Despite a high ceiling—supported by black steel trusses on columns located on 12-foot centers—MacKay-Lyons kept the head of the window wall in the day pavilion 7 feet above finished floor, a perspectival trick to focus the occupant’s gaze on the horizon. “You want to take the sky out of the picture, so that extra foot makes a huge difference,” he says.

Each of the three structures shares the same gable roof with a 6:12 pitch and an envelope defined by a palette of glass, local granite, and Cor-Ten steel. In contrast, the interiors vary, with circular-cut ash veneer in the day pavilion, white-painted shiplap in the night pavilion, and bare studs in the shed.

Natural ventilation predominates. Cross breezes through operable triple-glazed doors and window vents make the most of the area’s relatively mild winters and summers. Superinsulated walls offer energy efficiency, and a hydronic system heats the floors.

Despite its remoteness, MacKay-Lyons has little trouble getting high-level craftsmanship in his Shobac projects. “In the middle of the 19th century, half of all the ships in the world were built in Nova Scotia,” he says. Carpentry and metalwork were critical to those builders, and these trades live on through their descendants and define Shobac’s rural industrial vernacular. Of one local tradesman, MacKay-Lyons says: “He fixes fishing boats, but restores Porsches on the weekend.”

“I’ve always had this romantic, democratic idea that you can make architecture out of modest means and be inspired by fishing shacks, Mies van der Rohe, and Louis Kahn,” he says. All these influences, and more, inform the Smith Residence, and the larger architectural assemblage that MacKay-Lyons has created at Shobac.

Project Credits
Project: Smith Residence, Upper Kingsburg, Nova Scotia, Canada
Client: Brook and Pam Smith
Architect: MacKay-Lyons Sweetapple Architects, Halifax, Nova Scotia, Canada . Brian MacKay-Lyons, Hon. FAIA (design lead); Shane Andrews (project architect); Sawa Rostkowska (furnishings); Ashley Hannon, Matthew Bishop, Joseph Burkett, Tyler Reynolds (project team)
Interior/Lighting Designer/Landscape Architect: MacKay-Lyons Sweetapple Architects
Structural Engineer: Blackwell Structural Engineers
General Contractor: Philip Creaser Custom Homes and Woodworking
Stone Masons: Lange’s Rock Farm
Spa Consultants: Acapulco Pools
Millwork: Charles Lantz Cabinetry
Size: 1,910 square feet (day pavilion); 550 square feet (night pavilion); 315 square feet (shed)
Cost: Withheld

Upcoming Events

  • Build-to-Rent Conference

    JW Marriott Phoenix Desert Ridge

    Register Now
  • Reimagining Sense of Place: Materiality, Spatial Form, and Connections to Nature

    Webinar

    Register for Free
  • Homes that Last: How Architects Are Designing a Resilient Future

    Webinar

    Register Now
All Events