Sleeve House

Project Details

Project Name
Sleeve House
Location
TaghkanicNY
Architect
actual / office
Project Types
Single Family
Project Scope
New Construction
Shared By
actual office
Project Status
Built
Year Completed
2017
Size
2,500 ft²
Team
principle: Adam Dayem
project manager: Farzam Yazdanseta

Project Description

FROM THE ARCHITECTS:

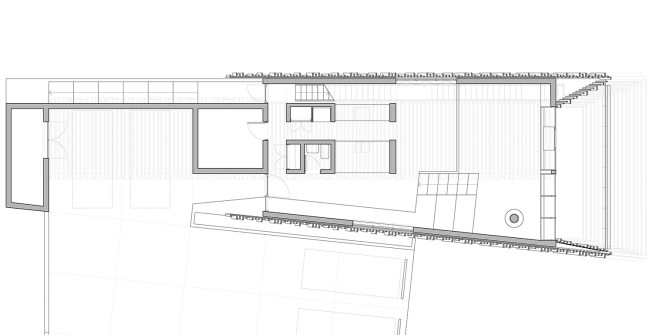
Oriented in relation to the rolling hills of its site and views of surrounding mountain ranges, the house is conceived as two elongated volumes – a smaller inner volume sleeved into a larger outer – sitting on a cast-in-place concrete base. Sleeving the two volumes creates two distinct types of interior space: first, between the inner and outer volumes, and second within the inner volume.

More public spaces of the house are in between the inner and outer volumes; they are the spaces remaining in the outer volume after the inner has been inserted into it. They include a dramatic entry gallery, a narrow vertical slot for the stairs, and a high ceilinged living space with a sloping wall of glass. These spaces are on a grand scale and they are finished with exposed concrete and charred wood, which run continuously in from the exterior. The interior of the inner volume contains private spaces of the house – bedrooms, bathroom and a study. These spaces are on an intimate scale with more typical domestic finishes. The experience of moving between these two types of spaces is like moving between two different worlds.

In the design of the house, aesthetics and sustainability are complementary. The inner and outer volumes are both wrapped around their tops, bottoms, and longs sides with charred wood. The charring is a traditional Japanese process called shou sugi ban, which leaves wood highly resistant to weather and rot. The wood itself is acetylated soft wood, which combined with the charring, creates a low-maintenance 50-year exterior cladding product that does not require harvesting old growth forest.

Main glazing areas are in short ends of the sleeved volume, which are oriented north-south to admit desirable solar gain and day-lighting. Smaller secondary windows are oriented east–west and screened by louvers to emphasize the purity of the sleeved volumes, reference the volumetric simplicity of historical barns and silos in the region, and mitigate less desirable solar gain.

The sleeved volumes sit on an exposed cast-in-place concrete base that forms the walls, steps and floors of the lower level. The floors and steps contain radiant heat elements, and together with the walls, they create a large thermal mass that significantly increases heating and cooling efficiency. Other energy efficient features including solar power with battery backup, a heat recovery ventilator, triple-pane glazing, water/sewer self-sufficiency, very low air infiltration and native plant landscaping keep the home’s CO2 usage at approximately 1 metric ton per year.

Upcoming Events

  • Reimagining Sense of Place: Materiality, Spatial Form, and Connections to Nature

    Webinar

    Register for Free
  • Homes that Last: How Architects Are Designing a Resilient Future

    Webinar

    Register Now
All Events