Sleeve House

Project Details

Project Name
Sleeve House
Location
TaghkanicNY
Architect
actual / office
Project Types
Single Family
Shared By
actual office
Project Status
On the Boards/In Progress
Year Completed
2016
Size
2,500 ft²

Project Description

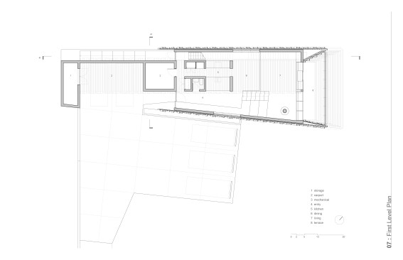
Located approximately two hours north of New York City in a rural area of the Hudson Valley, the site is an open, rolling hillside with views of the Catskill and Taconic mountains. Oriented in relation to the sloping terrain and views of the mountain ranges, the house is conceived as two elongated volumes – a smaller one sleeved into a larger – sitting on a cast-in-place concrete base. Sleeving the two volumes creates three different types of spaces: the first is in between the inner and outer volumes, the second is fully contained within the inner volume, and the third is a series of outdoor spaces framed by edges of both volumes. These three different types of spaces create three distinct spatial experiences for the residents of the house. The more public spaces of the house are in between the inner and outer volumes; they are the spaces remaining in the outer volume after the inner has been inserted into it. They include a dramatic entry gallery, a narrow vertical slot for the stairs, and a high ceilinged living space with a sloping wall of glass. These spaces are on a grand scale and are finished with hard, rough materials including exposed concrete and charred wood, which run continuously in from the exterior. The experience of passing from these hard, large-scale spaces into the interior of the inner volume is designed to be like entering a different world. The interior of the inner volume contains private spaces of the house – bedrooms, bathroom and a study. These spaces are on an intimate scale, and they are finished with soft materials such as carpet and drapery. As the house is a weekend escape from the city, outdoor spaces are an important part of the program. They are designed to enhance experience of the surrounding landscape by framing it in various ways. A roof deck cut from in between the inner and outer volumes, and a large terrace framed by the end of the outer volume offer expansive views and are scaled for entertaining. Two smaller terraces, one associated with each bedroom, frame views in a tighter, more intimate way. Both the inner and outer volumes are fully wrapped around their tops, bottoms, and long sides with a charred wood skin. The charring is a traditional Japanese process that leaves wood blackened and highly resistant to weather and rot. Boards of varying thickness and depth are placed flat and on-end to give the facades depth, pattern, and texture. The on-end boards run continuously as screens over windows on the long sides of the house to emphasize purity of the sleeved volumes. The short ends of both volumes are glass walls to maximize views.

Upcoming Events

  • Slate Reimagined: The Surprising Advantages of Slate Rainscreen Cladding

    Webinar

    Register Now
  • The State of Residential Design Today: Innovations and Insights from RADA-Winning Architects

    Webinar

    Register for Free
  • Specifying Smarter with Copper-Clad Aluminum (CCA) Metal-Clad Cable

    Webinar

    Register for Free
All Events