SL Chelak Villa

Project Details

Project Name
SL Chelak Villa
Location
N.12, Anahita St, Akhgari St, Fereshte St, ValiAsr St, ParkwayTehranIRAN0098
Architect
MADO ARCHITECTS
Project Types
Single Family
Shared By
MADO
Project Status
Concept Proposal
Year Completed
2018
Style
Modern
Team
Architect: Mado Architects

Project Description

Head Architect : Maziar Dolatabadi

Lead Architect : Moein Nikaeen

Architect In Charge : Deniz Ebrahimi Azar

3D Design & Rendering : Saeid Yousefvand

Drawing : Deniz Ebrahimi Azar

Model : Deniz Ebrahimi Azar

Tina Shahnazari

Noura Sam

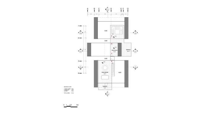
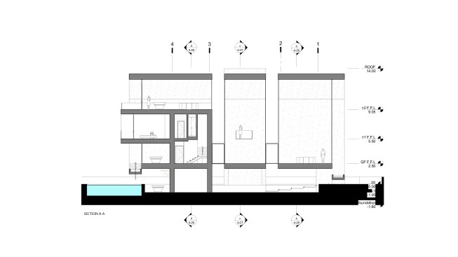
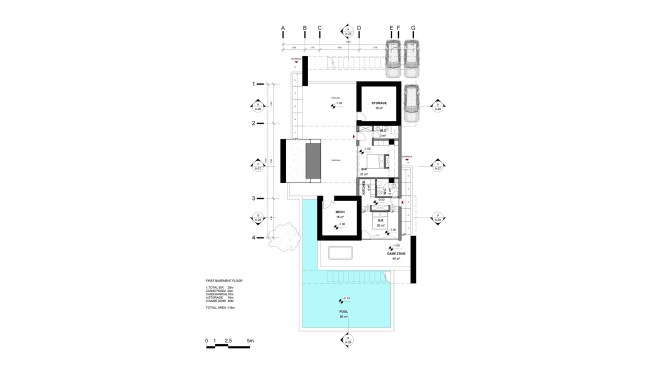
Villa No.1 and No.2 are designed in two lands close to each other, one with ​​740 square meters area and the other one with 1400 square meters area on gas street at Chelak Province. The client requested a personal signature, a specific idea for him that could be presented in all his projects. According to the subject of the project, Iranian traditional house typology was studied, both introverted and extroverted. In both types, voids were memorable event occurred, whether in the courtyard of the houses in central zone of Iran or as a gholam gardesh of houses in northern part of the country. Due to the study we emphasis on ​​empty space and void. In-Between spaces were the structural idea of ​​the project the client was looking for. So in this project, the design of the voids was more important than emphasizing the building mass or designing the project by building mass. The next issue that occurred in these villas was deconstructing the linear organization of the program, and a range

of programs replaced this dual structure, with private and public separation becoming private, semi-public/private and public. These were the two main ideas of the villas, each transformed to form with different method. Villa No. 2 (smaller) design by composing two types of courtyard and northern house typology that cause dual nature. The combination of these two types have opportunities that help us to organize program. Public and semi-public were defined within the In-Between spaces, and private programs within introverted typology were more enclosed. The project structure is a combination of a concrete core structure and metal trusses, with no other structural elements seen in space. The materials used in these two projects are wood and concrete, creating a dialogue between modern architecture and the context, as well as enhancing the connection between the two projects.

Upcoming Events

  • Build-to-Rent Conference

    JW Marriott Phoenix Desert Ridge

    Register Now
  • Reimagining Sense of Place: Materiality, Spatial Form, and Connections to Nature

    Webinar

    Register for Free
  • Homes that Last: How Architects Are Designing a Resilient Future

    Webinar

    Register Now
All Events