SkyValley House

Project Details

Project Name
SkyValley House
Location
Lake ArrowheadCA
Project Types
Single Family
Project Scope
New Construction
Shared By
Madeleine D’Angelo
Project Status
On the Boards/In Progress
Size
1,450 ft²

Project Description

This project was selected as a winner in the 2019 Residential Architect Design Awards
On the Boards (any unbuilt residential project not yet completed), Award

Los Angeles–based Edward Ogosta Architecture faced a lot of challenges when conceiving the SkyValley House in Lake Arrowhead, Calif.: difficult sloping topography exacerbated by tight building setbacks, dense vegetation, and community regulations that prescribed “a nostalgic Alpine architecture with steeply pitched roofs, ‘earth tones,’ and decorative detailing.”

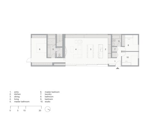
The design that emerged for the 1,450-square-foot single-family residence is configured on one level, with the primary living spaces—kitchen, dining, and living—in the center, with entry, guest bedroom, and office to the north and master suite to the south. The site’s slope drives the house’s directionality, with the west facing into a hillside—allowing for just clerestory windows on that side. A wide exterior deck to the east and south extends the living spaces and master bedroom over and above the descending landscape.

The house is a mix of the simple and complex: There’s a straightforward rectangular floor plan and black corrugated-metal cladding on both exterior walls and roof, but the structure is topped by slopes that are momentarily hip, shed, and gable. The forms fulfill the “Alpine” stricture of the design guidelines while reading as asymmetrical and decidedly contemporary. The volume is split by a narrow slot of space that serves as a rooftop stargazing platform, and is accessed via an exterior stair tucked into the hill. Light interior finishes provide a stark contrast to the dark exterior: White plaster walls and ceilings and oiled white oak floors help distribute daylight throughout, while contributing to an aesthetic that the architects describe as a “California chalet for the 21st century.”

Project Credits
Location: Lake Arrowhead, Calif.
Client: David Holley and Abby Kessler
Architect: Edward Ogosta Architecture, Los Angeles . Ed Ogosta, AIA (principal); Luis Garcia (designer)
General Contractor: Joseph McCormick
Size: 1,450 square feet
Cost: Withheld

Materials and Sources
Countertops: Caesarstone
Exterior Wall Systems/Roofing: Metal Sales
Structural System: Concrete foundations; Wood framing
Windows/Doors: Fleetwood Windows & Doors

FROM THE ARCHITECTS:

Conceived as a “California chalet for the 21st Century,” the SkyValley House in Lake Arrowhead references the historic legacy of mountain dwellings while maintaining a contemporary architectural expression. The design emerged by clarifying and balancing three primary forces acting on the project: the horizontal distribution of program, the diagonal slope of the terrain, and the vertical embrace of the sky. The project culminates in a rooftop viewing perch at the valley between the main roof volumes, a feature the client requested for late-night stargazing. The house is sited in an existing mountain neighborhood, on a previously undeveloped “remainder” lot with challenging topography, difficult building setbacks, and dense vegetation. Local regulations mandated a nostalgic Alpine architecture with steeply pitched roofs, “earth tones”, and decorative detailing. Our design creatively meets those requirements in a modern way through coherent forms, an absence of excess, and rigorous material unity. The bar-shaped plan strategically nestles into the terrain between numerous mature cedar trees, and consists of a main open living space bookended by private bedrooms. A variety of pitched roof forms—hip, shed, and gable—are positioned to shape interior space, provide a unique profile to the house, and gesture toward the skyward view from the roof perch. Large operable glass doors at the main living space and master bedroom capture distant views, while allowing nature and sunlight to flow into the house. Interior finishes are minimal, consisting of white plaster and oiled white oak. The exterior is entirely clad in black corrugated metal to unify walls and roof, allowing the building to visually recede into the shadows of the forest. Through simplicity and a minimum of means, the SkyValley House satisfies our client’s needs for a small house of quiet intensity, one offering an atmosphere of warmth, clarity, and a deep connection to nature.

Project Credits:
Project: SkyValley House
Architects: Edward Ogosta Architecture. Los Angeles . Ed Ogosta, AIA (principal); Luis Garcia (designer)
General Contractor: Joseph McCormick

Upcoming Events

  • Design Smarter: Leveraging GIS, BIM, and Open Data for Better Site Selection & Collaboration

    Live Webinar

    Register for Free
  • Slate Reimagined: The Surprising Advantages of Slate Rainscreen Cladding

    Webinar

    Register Now
  • The State of Residential Design Today: Innovations and Insights from RADA-Winning Architects

    Webinar

    Register for Free
All Events