Sincerely Austere

Project Details

Project Name
Sincerely Austere
Project Types
Custom
Project Scope
Adaptive Reuse
Shared By
mohan reddy
Project Status
Built
Room or Space
Kitchen

Project Description

Mixed-Use-Development
K + B Studio / Kitchen
Sincerely Austere

How does one insert ultramodern living spaces into a former industrial military building? Acanthus Ferguson Mann Architects of Bristol, England, accomplished it with a kitchen and bath retrofit that’s bold enough to hold its own inside the heavyweight building, yet is also sleek and translucent.

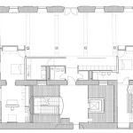
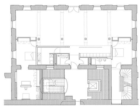
The Brewhouse, which dates to around 1825, is one of seven buildings at the Royal William Yard in Plymouth, Devon, that supplied victuals to navy ships of that era and was originally designed for brewing the beer that sailors drank on board. Defunct for quite some time, the entire complex is now being adapted as an upscale mixed-use development that includes 130 apartments, an art gallery, and restaurants. “Plymouth traditionally relied heavily on the navy supporting it, and certain areas have become a bit run-down,” says project architect Hugh Clegg, who is now at Devon, England-based Fuse Architecture. “This conversion has helped to kick-start the area.”

As warehouses go, the buildings are unusually ornate, with thick limestone walls, timber floors, and fluted cast iron columns. Responding to their heft, the architects kept the palette of materials to a minimum, choosing just a few robust, reflective materials that complement the building’s colors and textures. In a nod to the modern-day penchant for socializing around the cooktop, the kitchen directly faces the living room, though fixed-glass screens partially separate the two rooms, admitting light while editing views. Defined also by a level change and a clear limestone floor, the kitchen runs along just one wall and is completely devoid of distracting details. The work surface and integrated sink are made of stainless steel that’s been shot-blasted for a slightly matte finish. Electrical sockets are hidden from view under the front edge of the cupboards, which are constructed of MDF spray-painted to a hard finish. The light-reflecting backsplash provides another antidote to the heaviness of the building. It’s made of glass that has been spray-painted on the back with white enamel.

This model show flat was designed to attract fast-paced professionals, many of whom eat out or order in much of the time. Ample cabinets keep everyday essentials within reach, while down the hall, “a utility area doubles as a pantry for all their other bits,” Clegg says. The components add up to a workspace that’s stylishly austere, and yet fully functional.

Upcoming Events

  • Build-to-Rent Conference

    JW Marriott Phoenix Desert Ridge

    Register Now
  • Reimagining Sense of Place: Materiality, Spatial Form, and Connections to Nature

    Webinar

    Register for Free
  • Homes that Last: How Architects Are Designing a Resilient Future

    Webinar

    Register Now
All Events