Silver Strand Beach House

Project Details

Project Name
Silver Strand Beach House
Location
OxnardCA
Project Types
Shared By
dmadsen
Project Status
Built
Size
2,910 ft²

Project Description

Located on the Silver Strand Beach in Oxnard, this house responds to extraordinary site conditions as a progressive revealing of a sculpted interior.

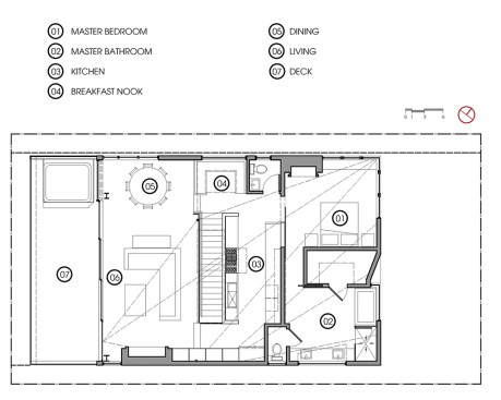
The bottom level is a mix of colored glass tiles that gives the appearance of lightness and incandescence. Cantilevering on 3 sides, the top level is sculpted to express openings and finished quietly to exaggerate its weight over the bottom level.

The 2nd floor is an expansive and complex composition of intersecting ceiling planes, framed openings and ocean views. Major formal manipulations are the result of the site’s intersecting views from the Channel Island Marina to the Pacific. The roof and ceiling forms are manipulated to magnify and contrast these views. This primary view-expression cuts diagonally as a continuous ceiling vault. Secondary ceiling expressions direct views to the beach, while shielding from less desirable directions.

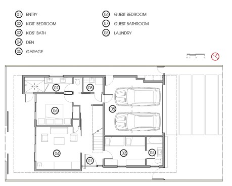
Framing views and continuing exterior materials into the house create a common visual and tactile thread.
Shimmering glass tile on the building’s bottom level leads to the side entry that is hidden at the street. Inside, the same glass tile continues upstairs along the stair, and contrasts with concrete floors, teak stair and white ceiling. On axis to the entry, the solid, stair leads directly to a framed view to the Channel Island Marina.

Upcoming Events

  • Design Smarter: Leveraging GIS, BIM, and Open Data for Better Site Selection & Collaboration

    Live Webinar

    Register for Free
  • Slate Reimagined: The Surprising Advantages of Slate Rainscreen Cladding

    Webinar

    Register Now
  • The State of Residential Design Today: Innovations and Insights from RADA-Winning Architects

    Webinar

    Register for Free
All Events