Showcase for Reuse

Project Details

Project Name
Showcase for Reuse
Project Types
Commercial
Shared By
Xululabs
Project Status
Built
Size
3,700 ft²
Certifications & Designations
LEED Gold

Project Description

Upon entering the lobby of Dostart Development Co. (DDC) in Palo Alto, Calif., visitors are immediately confronted with an enormous Richard Misrach photograph depicting clouds floating in the azure. Stepping toward it, they are enveloped in light falling from above, and their gaze is drawn to a view of actual sky through a band of clerestory windows above the roofline—a kind of architectural periscope.

“It’s an absolutely stunning entry,” says the company’s president, Steve Dostart. As the head of the small firm that specializes in sustainable development of commercial buildings, Dostart is justifiably proud of DDC headquarters, a place that did not always boast such a dramatic first impression. In fact, had the small, 3,700-square-foot, single-story office building, which appeared neglected, if not entirely obsolete, been torn down when Dostart purchased it in 2007, it would have raised little outcry.

Instead of a demo job, Dostart thought that a serious renovation could make the midcentury modern structure into an exemplary showcase for reuse, not to mention an ideal workplace. “I intend to spend the rest of my career here, so I wanted it to be a place that I really enjoyed spending most of my waking hours,” he says.

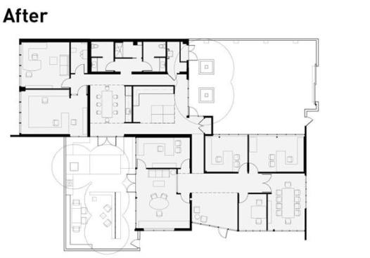
A considerable transformation would be required. Built in 1945, the building still had great bones, but many of its additions detracted from the original space. To accommodate electrical and mechanical infrastructure that was added after the original construction, ceilings had been dropped considerably, obstructing the tops of many floor-to-ceiling windows and making rooms dark and cramped. Original glasswork had been replaced at random, creating an unflattering hodgepodge. Meanwhile, the exterior presented a rather plain, institutional brick façade, set unceremoniously on an unkempt plot. And there was little connecting of indoors with outdoors despite abundant exterior wall space furnished by the unusual structural layout—a cockeyed figure eight of two overlapping rectangular wings.

Dostart turned to San Francisco–based residential architect Andrew Mann, whose portfolio highlights his modernist influences, to help summon the building’s latent potential. “I loved the idea of taking this building back to what it could have been but probably never was,” Mann says.

The architect knew he would first have to take what he calls a “surgical” approach, asking: “What can we take away to reveal what this design is about?” With the removal of many interior walls, the street-facing south wing was improved to house the reception area, a conference room, and executive offices, which were concentrated at the perimeter for daylight and garden views. Where workspaces were exposed to the street, translucent glass provides privacy. The north wing, previously a garage and machine shop, was reconfigured for back-of-house functions including an accounting department, workroom, kitchen, bathrooms, and break room.

“Andrew stripped away all the clutter,” Dostart says. “He returned it to the most pure architectural roots of the front building, and then brought the back wing into harmony with the front.”

If Mann’s eye for restoring original design integrity is strong, so is his signature on the work. He added clerestories such as a north-facing one in the foyer. In the back, where the removal of dropped ceilings enhanced volume, the addition of the illuminating pop-ups was essential. Clerestories also were added in the north wing’s work area and its break room. The use of daylight established a glowing interior that minimizes the need for artificial illumination while “accentuating the building’s simple, planar geometries,” Mann says. “As an architect, natural light is always important to me as a means to articulate the quality of a space.”

In fact, the project was designed so that all regularly occupied areas have direct access to daylight. Other than required emergency lighting, the building’s energy-efficient lights are all controlled by occupancy sensors.

Mann’s renovation also integrated indoor and outdoor spaces. All spaces except for bathrooms connect seamlessly through large glass doors, and both wings now share access to a 1,000-square-foot courtyard.

Ninety-two percent of construction waste was diverted from landfills. Other improvements include the installation of vertical panes of clear and ribbed high-performance glass to improve efficiency while retaining something of the original design appeal; and a water-friendly landscaping makeover that includes a drip irrigation system that shuts off when it rains and maintains no-water species such as bramble, catmint, and California rush and coffeeberry. Models predict the system and plantings to reduce potable water use by 52.2 percent from baseline data. The base building system and envelope are designed to exceed baseline figures by 16.5 percent.

The greatest challenge for Mann, though, was in finding a way to incorporate modern operating equipment without compromising the structure’s simplicity—no small feat for a slab-on-grade building with zero attic space. Working closely with the mechanical engineer, Mann meshed operational logistics with architectural consistency, which resulted in solutions such as the addition of a roof-screen. Made of aluminum slats that match the façade’s window mullions, the linear crown hides 24 photovoltaic panels that generate 6,671 kilowatt-hours of energy each year, an energy-efficient HVAC system, and other mechanical components. It also conceals the pop-ups outside, introducing an element of surprise within.

Indeed, almost four years after DDC moved in, the place has lost nothing of its renovated charm. With its clean lines and vintage-style furnishings, the office space is now imbued with a retro vibe vaguely suggestive of Mad Men, though Dostart assures us that there’s no hidden bar to enjoy. Still, the mod aesthetics, along with the old building’s efficiency and airy flow, speak volumes to prospective clients. Says Dostart: “This place is the best business card I could possibly offer.” ?

Ben Ikenson writes about green building and sustainability, among other issues, from Albuquerque, N.M.

Upcoming Events

  • Slate Reimagined: The Surprising Advantages of Slate Rainscreen Cladding

    Webinar

    Register Now
  • The State of Residential Design Today: Innovations and Insights from RADA-Winning Architects

    Webinar

    Register for Free
  • Specifying Smarter with Copper-Clad Aluminum (CCA) Metal-Clad Cable

    Webinar

    Register for Free
All Events