SEZGIN ARCHITECTS – REFERANS C.P.A inc. Office

Project Details

Project Name
SEZGIN ARCHITECTS – REFERANS C.P.A inc. Office
Location
Ogretmenler Boulevard Adana/turkeyadanaTurkey01000
Project Types
Shared By
guclentekeli
Project Status
Built
Year Completed
2012

Project Description

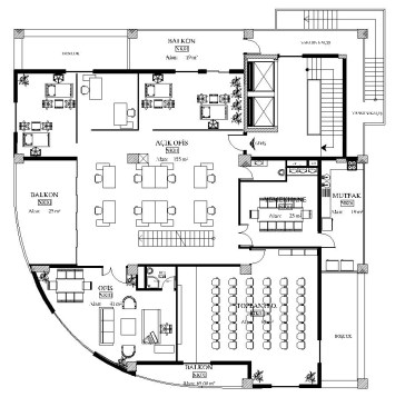
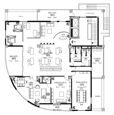
This project designed and manufactured by sezgin architecs for Referans Certified Public Accountant inc. in Adana/Turkey.
The building, which will be used as a branch office of the company. There are four brances of Referans inc. The branches from istanbul, ankara, konya, adana in Turkey. For this project, the process of carefully conducted a study.

Type of project: Interior project.
Type of building: Office building (Certified Public Accountant office),
Date of build: november 2012
Date of project: april 2012
Owner of building: REFERANS Certified Public Accountant inc.
Project design and contractor: Sezgin Architects, Engineering
Project location: Adana / TURKEY

Project design office information: Sezgin Architects- Engineering

Upcoming Events

  • Reimagining Sense of Place: Materiality, Spatial Form, and Connections to Nature

    Webinar

    Register for Free
  • Homes that Last: How Architects Are Designing a Resilient Future

    Webinar

    Register Now
All Events