SENYAI: Thai Restaurant

Project Details

Project Name
SENYAI: Thai Restaurant
Location
5865 Ellsworth AvePittsburghPA15232
Architect
Epiphyte Lab
Project Types
Commercial
Shared By
Dana Cupkova
Project Status
Built
Year Completed
2017
Style
Modern
Size
350 ft²
Team
Design Principal: Dana Cupkova
Architectural Designer: Gretchen Craig
Design and Fabrication Team: Colleen Clifford
Design and Fabrication Team: Sinan Goral
Design and Fabrication Team: Tom Sterling
Design and Fabrication Team: Trent Wimbiscus

Project Description

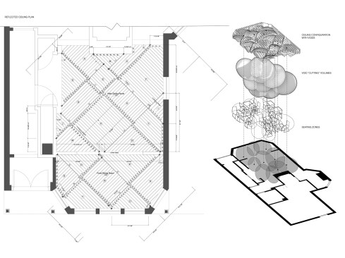
Senyai Thai Restaurant is a small 340sq space striving to create unique atmosphere in the developing urban district of Pittsburgh. The ceiling, inspired by the vaulted geometry of ancient Thai architecture, incorporates acoustic and lighting performance into a contemporary spatial experience with soft ambient effects. Visual layering of ceilings fins is suggestive of movement while reducing the reverberation of sound in individual vaulted zones, thus creating localized acoustic privacy and overall dynamic character. The ceiling is formed by a series of 275 unique vertical slats that sectionally change in series in the perpendicular direction–no two slats, or vaults, are alike. The global texture of the surface and color plays with light to create a sense spatial weightlessness and visual expansion, as the eye travels beyond the each articulated edge. At the same time the slats appear as a continuous surface, mimicking an active body of water, or, in homage to the restaurant’s name (sen yai translates to “big noodles” in Thai), a bowl of hot noodles in broth.

Upcoming Events

  • Build-to-Rent Conference

    JW Marriott Phoenix Desert Ridge

    Register Now
  • Reimagining Sense of Place: Materiality, Spatial Form, and Connections to Nature

    Webinar

    Register for Free
  • Homes that Last: How Architects Are Designing a Resilient Future

    Webinar

    Register Now
All Events