Seneca Residence

Project Details

Project Name
Seneca Residence
Location
VeniceFL
Project Types
Shared By
dmadsen
Project Status
Built
Size
2,400 ft²

Project Description

The coastal plains of native Florida is a low lying habitat of wetlands and marshes prone to flooding, and provides a habitat for a rich array of flora and fauna that is never quite willing to surrender its landscape to the reach of man.
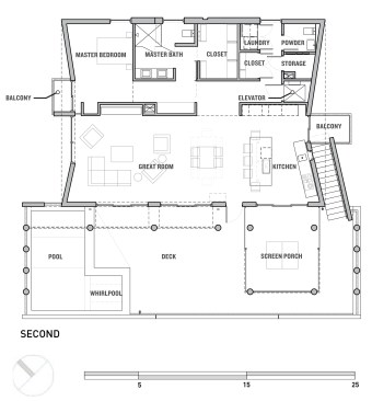
The Seneca House is all about how architecture and the landscape are both separate and connected. The house is a muscular solid of strong edges and sharply cut forms – it is decidedly a shelter. Intersecting this form to the south is a terrace elevated on masonry walls and columns.

The surrounding landscape preserves the forest of scrub oaks and palmettos and where invasive species were removed restores draught resistant plant materials native to the area. This area is entirely pervious and given back to the native environment. The house turns tradition upside down, the main level with its great room and the adjoining terrace with its pool is 15’ above the natural grade. It is up in the trees that people have their place.

The main living level overlooks a nearby preserve and bird sanctuary. Inside the primary living space is a combined, high ceilinged living/dining/kitchen area. South facing windows and doors open onto a pool and are shaded by a trellis topped with Heliodyne direct solar domestic hot water collectors. A screened dining porch also opens onto the pool area. The concrete of the pool deck is polished along with all the interior floors – another important sustainable strategy where a material is not covered with another material.

Each piece of furniture, each work of art was selected to emphasis light, color and form with the house as the white canvas that shows off these forms. Seneca House is a building which leaves 90% of the site to nature, yet carves out a dynamic but small place for people.

Upcoming Events

  • Build-to-Rent Conference

    JW Marriott Phoenix Desert Ridge

    Register Now
  • Reimagining Sense of Place: Materiality, Spatial Form, and Connections to Nature

    Webinar

    Register for Free
  • Homes that Last: How Architects Are Designing a Resilient Future

    Webinar

    Register Now
All Events