Seattle Floating Home

Project Details

Project Name
Seattle Floating Home
Location
SeattleWA
Project Types
Single Family
Project Status
Built
Year Completed
2016
Size
1,632 ft²

Project Description

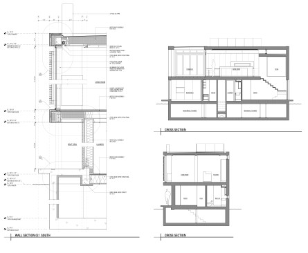
SEATTLE FLOATING HOME The site for this floating home is an outboard slip on Lake Union with views west towards Gas Works Park and downtown Seattle to the south. Constructed on concrete floats that are 24 feet wide by 44 feet long, the homes on this dock are situated so that the shorter dimension faces out to the lake. For the layout of the house, our client chose an inverted plan where the living spaces are situated on the upper level, taking advantage of the view, while bedrooms are on the lower, float level.

Stepping onto the float, one encounters a broad exterior deck that runs the length of the float; this deck leads to the Entry and provides for boat moorage. The Entry features two exterior walls of channel glass, allowing abundant natural light while maintaining privacy from the community dock. The float level contains the Master Bedroom to the West, and a Guest Bedroom to the East.

Two Bathrooms and a Dressing room are located between the two bedrooms along the North side.

The second level, a single, open room, provides multiple areas to enjoy throughout the day. To take maximum advantage of Seattle's limited sunshine, our client desired both an eastern morning, and a western evening, terrace. The east terrace, adjacent to the kitchen, features a small seating area, and provides access to a roof deck. The west terrace is located adjacent to the living and dining areas; two folding door wall systems allow the terrace to be shared by both. To balance the natural light from the East and West ends, a diffused glass wall along the South side was included.

A fixed teak screen is placed outboard for control of summer light.

The north wall of the upper level is lined with a continuous wall of cabinetry serving both the kitchen and dining areas.

Exterior materials were chosen for longevity and ease of maintenance. Lower exterior walls are clad in horizontal teak slats applied as a rain screen. Upper exterior walls are clad with white ceramic panels which require no maintenance other than a periodic hose wash for cleaning. Teak screens enclose the east terrace; on the north the panels are fixed while on the east they are operable. An operable teak screen also extends along on the south side of the upper level. These screens provide varying degrees of privacy and sun protection.

Upcoming Events

  • Slate Reimagined: The Surprising Advantages of Slate Rainscreen Cladding

    Webinar

    Register Now
  • The State of Residential Design Today: Innovations and Insights from RADA-Winning Architects

    Webinar

    Register for Free
  • Specifying Smarter with Copper-Clad Aluminum (CCA) Metal-Clad Cable

    Webinar

    Register for Free
All Events