Seashore Library

Project Details

Project Name
Seashore Library
Architect
Vector Architects
Project Status
Built

Project Description

Text by Katie Gerfen
It’s happened to us all: You arrive at your vacation destination, ready to relax in the sun, and find you’ve left your book at home. In most scenarios, you’re stuck with gift shop fare, but if you’re spending your days off in Beidaihe New District, China, you’re in luck: The beach comes equipped with its own library.
Located roughly three hours from Beijing, this growing resort town on Bohai Bay was master planned by Sasaki Associates in 2010, and the developers want to make sure it comes complete with cultural amenities. For the library, they hired Vector Architects, a Beijing-based studio headed by Gong Dong, to design a sculptural community space with an unconventional approach: The library has no paved path to the entrance. It can be accessed from the beach or from a running trail that passes nearby. But even from the trail, Dong says, “People will have to take a 30-meter walk through the sand.” Hardly a barrier-free entry, but the architects say that staff and facilities are available to help visitors with disabilities access the building. The library was placed away from the town’s other structures “in order to achieve a more direct relationship with the ocean,” Dong says.
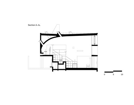
The concrete structure was cast on site in board-lined formwork. “The use of wood forms was inspired by the marks in the sand of footprints, wind, and wheels,” Dong says. Inside, the double-height reading room is a vaulted space that reaches its apex at the eastern edge, maximizing views of the water through a window wall with operable glass doors. Light also enters the space through a clerestory of hand-made glass blocks, clouded and textured by air bubbles introduced during the manufacturing process. Circular lightwells, each 30 centimeters in diameter, puncture the vault. These are operable vents, allowing for natural ventilation in nice weather, and admitting bright spots of western sunlight to the reading room.
Just to the north of the reading room’s second-floor balcony, a meditation space with sloped ceilings and a single horizontal window out to the sea provides a compressive counterpoint to the light-filled reading room’s release. Beyond it, and separated by a terrace, is an activity room with articulated ceilings and a west-facing clerestory that can be used for public events.

The curves of the ceiling planes throughout the 4,844-square-foot building were inspired by the waves crashing onto the beach. “The design is focused on exploring the relationship of the space, the movement of the human body, the shifting light ambiance, the air ventilating through, and the ocean view,” Dong says.

And it all comes together in a sculptural and literary folly worth exploring. Visitors to Beidaihe New District should leave their books at home.

Project Credits
Project: Seashore Library, Beidaihe New District, China
Client: Beijing Rocfly Investment Group Co.
Architect: Vector Architects, Beijing—Gong Dong (principal architect); Chen Liang (project architect); Yifan Zhang, Dongping Sun (site architects); Zhiyong Liu, Hsi Chao Chen, Hsi Mei Hsieh (project team)
Structural and M/E/P Engineer: Beijing Yanhuang International Architecture & Engineering Co.
Structural Consultants: Lixin Ji, Zhongyu Liu

Size: 450 square meters (4,844 square feet)

Upcoming Events

  • Design Smarter: Leveraging GIS, BIM, and Open Data for Better Site Selection & Collaboration

    Live Webinar

    Register for Free
  • Slate Reimagined: The Surprising Advantages of Slate Rainscreen Cladding

    Webinar

    Register Now
  • The State of Residential Design Today: Innovations and Insights from RADA-Winning Architects

    Webinar

    Register for Free
All Events