Sculpture Garden Bridge

Project Details

Project Name
Sculpture Garden Bridge
Architect
Jensen Architects
Project Types
Cultural
Shared By
Xululabs
Project Status
Built
Size
2,000 ft²

Project Description

When the San Francisco Museum of Modern Art built a parking garage adjacent to its Mario Botta–designed museum building a decade ago, it knew from the get-go that the garage roof would one day hold a sculpture garden. So when the institution ran an invited competition three years ago, the question wasn’t what the program for the rooftop space was going to be, but how it was going to be achieved.

Local firm Jensen Architects emerged the victor with a restrained, minimalist scheme that used as little structure as possible to create a showcase for the museum’s sculpture collection. The result is an open garden with a 200-square-foot glass pavilion and an enclosed, 2,000-square-foot overlook that protrudes from the top-floor gallery of the Botta building. “The idea was that you could enjoy the sculpture garden even in inclement weather,” principal Mark Jensen says.

The last remaining hurdle for the design was access. The museum wanted to ensure that the garden and overlook were accessible year-round, even when the top-floor galleries were closed for installing new shows. The clear answer was a pedestrian bridge, which also could serve as additional exhibition space.

The team’s original approach was to hang the walkway off the side of the Botta building, but this required the removal of massive precast concrete panels, and the existing steel frame “wasn’t designed to carry the weight of this walkway hanging off the side like a saddlebag,” Jensen says.

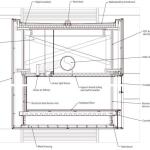
The team at Jensen Architects worked with structural engineers at Forell/Elsesser to devise a solution that places all of the structure above the ceiling and suspends the bridge from it. Two steel beams, 100 feet long and 6 feet deep, span the gap between the two buildings. The walkway actually hangs from 10 small-diameter steel tension rods on each beam. The hardwood floor and metal and glass walls weigh relatively little and are fully supported by the tension rods, so no substantive structure is required underneath. A new concrete beam was installed where the bridge meets the garage to transfer the load to the building’s existing structural columns.

To complicate things, San Francisco’s seismic activity required additional engineering. In an earthquake, both the bridge and the overlook must move with the existing building. Slip joints were created where the two new structures rest on the garage roof.

In the end, visitors will not even see most of the project’s structural feats, instead enjoying the fastidiously detailed minimalist space. Which is just how the architects want it. “There was a constant dialogue about how much seating, planting, and open space [to include],” Jensen says. “And all of these moments are amplified by the simplicity of the design.”

Upcoming Events

  • Design Smarter: Leveraging GIS, BIM, and Open Data for Better Site Selection & Collaboration

    Live Webinar

    Register for Free
  • Slate Reimagined: The Surprising Advantages of Slate Rainscreen Cladding

    Webinar

    Register Now
  • The State of Residential Design Today: Innovations and Insights from RADA-Winning Architects

    Webinar

    Register for Free
All Events