School of Arts + Architecture Dean’s Suite

Project Details

Project Name
School of Arts + Architecture Dean’s Suite
Location
9201 University City BoulevardCharlotteNC28223
Architect
Watson Tate Savory
Project Types
Shared By
tsavory
Project Status
Built
Year Completed
2016
Size
2,577 ft²
Team

Project Description

This renovation significantly improves function and efficiency, and provides an updated identity for the UNC Charlotte College of Arts + Architecture Dean’s Suite. Respecting the iconic 1980’s modernism of the Gwathmey Siegel – designed building, this careful intervention references the reductivist language, rhythms, lighting strategies and warm palate of the original architects’ late modern signature interiors. A reception desk and built-in casework are incorporated
into a wood-paneled band that defines circulation, visually tying program elements together. Walls are expressed as freestanding planes, aligned with ceiling planes, separated by ultra-clear glass, infusing natural light deeply into the suite.

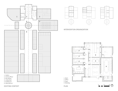
Originally designed as a simple administrative open office with support spaces for a department chair and staff, the front office of Storrs School of Architecture was no longer suited to the more complex program and functions associated with the College of Arts + Architecture Dean’s Suite.

Acoustic separation of offices, required for confidentiality, was lacking in the open environment. Existing space was underutilized, while a single conference room, shared with the School of Architecture, was the only meeting space available for a college that includes five departments. The reception area was cramped. Lateral files, copiers, printers and other equipment and materials, in full view, cluttered the office. Utilitarian finishes, such as painted concrete block walls and 5×5 grid acoustic tile ceilings were dated. The challenge was to plan for four enclosed offices, an additional meeting room, an expanded reception area and organized storage, while maintaining open vistas with limited available natural light.

To meet that challenge, several strategies were deployed. A wood-paneled three dimensional band was created that floats through the plan, defining circulation while demarcating thresholds, moving from public to increasingly private spaces. This band first presents itself as a vertical panel in the front façade and terminates as the entry to the Dean’s office. Incorporating the reception desk and associated storage, lateral files, cabinets and recessed displays, the band efficiently and neatly accommodates the bulk of storage and layout needs, effectively hiding files and equipment within interstitial space.

To infuse the suite with daylight that is only available along the north exterior wall, and to provide for expansive views throughout the space, partition and ceiling planes are pulled apart, separated by low iron, ultra-clear glazing. This has the benefit of opening the space visually while also allowing for broad surfaces to display student work. Lighting is also used primarily to showcase student work, both hung and displayed on built-in credenzas and tables. Further storage and a workroom are integrated into the former kitchen. Printers, copiers, mail slots and kitchen storage are contained behind minimalist walls of white plastic laminate casework. A multi-use island on casters serves as a workroom table, a lunch table and a storage bin, and can be rolled into the adjacent gallery as a reception counter. At the lobby more student work is on display, framing the entry. To the left, flexible magnetized walls behind glass doors allow for continuingly rotating displays for the College of Arts + Architecture. On the right, between the CoA+A and the School of Architecture, a digital display board is dedicated to architecture students. Together, these displays both delineate the two suites while also signifying the relationship between the College of Arts + Architecture and the School of Architecture.

Upcoming Events

  • Build-to-Rent Conference

    JW Marriott Phoenix Desert Ridge

    Register Now
  • Reimagining Sense of Place: Materiality, Spatial Form, and Connections to Nature

    Webinar

    Register for Free
  • Homes that Last: How Architects Are Designing a Resilient Future

    Webinar

    Register Now
All Events