Sawmill

Project Details

Project Name
Sawmill
Location
TehachapiCA
Architect
Olson Kundig
Project Types
Single Family
Shared By
katie_gerfen

Project Description

This article appeared in the November 2018 issue of ARCHITECT:

A single-family house in the Mojave Desert is located miles from the nearest utility hookup.

For Bruce Shafer and Carol Horst, designing their vacation home to be off the grid wasn’t a choice. They had purchased a 36-acre plot in California’s forbidding Tehachapi Mountains—deep in the Mojave Desert, 5,000 miles above sea level, 5 miles from the nearest road, and nearly as far from utility hookups.

“It’s not just off the grid, it’s off off the grid,” Shafer said.

Shafer, an engineer, had long admired the work of Seattle’s Olson Kundig, especially its rational, detailed approach to building sustainable domestic architecture. When he approached the firm, they jumped at the challenge.

“It’s a relentless climate that is going to try to break down anything you do,” says design principal Tom Kundig, FAIA. “There’s going to be a fire coming through here—not if, but when.”

Together, the couple and the firm designed a home that is not only energy and water neutral, but is built to last in the high desert hills with little maintenance—underlining the importance of durability in sustainable design.

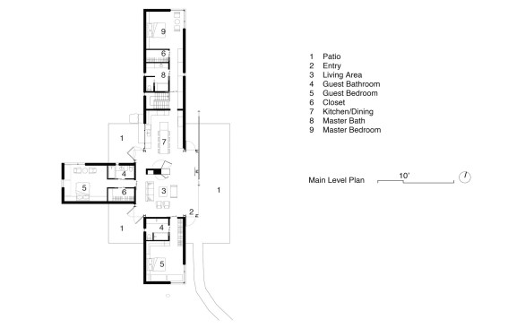
In such an environment—the mountains get just 12 inches of rain a year—water is a scarce but vital commodity. But rather than draw from a faraway main or rely on a cistern, the 3,390-square-foot house, called Sawmill, pulls all its water from the ground, depositing it in a tank located uphill from the home to ensure constant pressure. It then returns the wastewater to the ground, via a septic tank and leach field.
“The idea is to recharge the groundwater rather than capture the rain that hits the roof,” Kundig says.

The water pump, along with everything else electrical in the house, is powered by an 8.4-kilowatt photovoltaic array. But Olson Kundig kept energy needs to a minimum by siting the building to take full advantage of cooling cross breezes and morning and evening light. According to the firm’s estimates, Sawmill, despite its size, generates 96 percent less CO2 than the typical single-family house.

The striking thing about Sawmill is how low-tech it is: Mechanical and electrical elements are kept to a minimum, while passive and hand-operated functions dominate. For example, heat from the central fireplace is directed down into an 840-square-foot basement, where it can then radiate across the underside of the main level’s floors.

Though it was completed in 2014, Sawmill has a timeless solidity; one could imagine it having stood for decades already—or for centuries into the future. That’s no illusion: The walls are made with concrete masonry units, reinforced with rebar and filled with concrete grout. The weathered, rusty roof beams are steel—25 tons total—salvaged from sites around the home where Shafer, who operated a cement factory nearby, had contacts. Wood for detailing, such as for the interior stair treads and sliding doors, was taken from a barn near the site.

Indeed, much of the building is made with salvaged parts, and while it appears coherent and fully designed, much of its mass owes to the serendipity of finding large steel components. “They told me, ‘Bruce, get a list of all the steel available,’ and then they made use of the steel they had on hand,” Shafer says.

The building was easy enough to assemble that Shafer was able to act as general contractor, and, with the help of his sons, do some of the work themselves on weekends. “We laid the tubing for the radiant floors and milled the dining room table, which was a door Tom had salvaged from nearby,” he says. “I’m an engineer and a hands-on guy, so that was a lot of fun.”

For all its monumentality and high-desert austerity on the outside, the house is surprisingly intimate inside. Inspired by a campground, the home is split into three wings around a central hearth; the fourth side is a 12-by-26-foot glass wall that can open onto a patio with a few turns of a large metal wheel, which the firm salvaged from a nearby scrapyard.

So far, Sawmill has exceeded Shafer’s expectations. “It’s a second home, and we didn’t want to spend every weekend doing a bunch of work on it,” Shafer says. “We wanted a low-maintenance structure that would last, and that’s exactly what it is.” More than that, Sawmill shows that sustainable domestic architecture doesn’t need to be fancy to work wonders.

Sawmill COTE Top Ten Metrics by on Scribd

Project Credits
Project: Sawmill, Tehachapi, Calif.
Client/Owner: Bruce Shafer and Carol Horst
Architect: Olson Kundig, Seattle . Tom Kundig, FAIA (design principal); Elizabeth Bianchi Conklin, AIA (project manager)
Interior Designer: Olson Kundig, with furniture selections by the client
Structural Engineer: Monte Clark Engineering
Electrical Engineer: KCM Electric
Geotechnical Engineer: Soils Engineering (SEI)
General Contractor: Bruce Shafer Lighting Designer: Olson Kundig
Energy Engineer: WSP Flack + Kurtz
Gizmo Engineer: Turner Exhibits—Phil Turner
Master Welder: James Riddle
Corrugated Metal Roofing Consultant: Steelogic
Size: 4,170 square feet
Cost: Withheld

Materials and Sources
Concrete/Flooring/Masonry and Stone: Nibbelink Masonry Co. Commercial Builders
Gizmos: Turner Exhibits
Photovoltaics or other Renewables: OutBack Power
Roofing: Steelogic
Steel Decking: ASC Steel Deck
Windows/Doors: Western Window Systems
Big Door/Steel Details: Mechanical Industries

Read expanded coverage of the winners of the 2018 AIA COTE Top Ten Awards.

From April 2018:

This project is a winner in the 2018 COTE Top Ten Green Projects Awards.

From the AIA:

Set in California’s harsh Mojave Desert, Sawmill offers a new model for the sustainable single-family home. The client brief called for a self-sufficient home that maximized connection between architecture and nature, and between family members inside. The 5,200 SF concrete block, steel and glass home is designed to stand up to the severe climate of the fire-prone Tehachapi Mountains. Demonstrating that high design can also be high performance, Sawmill is a net-zero home that operates completely off the grid.

Metrics Snapshot:

Predicted consumed energy use intensity (EUI): 13.6 kBtu/sq ft/yr

Energy use intensity (EUI) refers to total energy use by the facility including energy purchased from utilities and provided by on-site renewable sources.

Predicted Net EUI: 0 kBtu/sq ft/yr

Predicted Net carbon emissions: 0 lb/sq ft/yr

Net carbon emissions refers to net purchased energy use (total energy use, less any energy generated on-site from renewable resources).

Predicted reduction from national average EUI for building type: 100 percent

Predicted lighting power density: 0.521 W/sq ft

Percentage of floor area or percentage of occupant work stations with direct views of the outdoors: 100

Percentage of floor area or percentage of occupant work stations within 30 feet of operable windows: 100

Percentage of floor area or percentage of occupant work stations achieving adequate light levels without the use of artificial lighting: 87 percent >300 lux at 3pm March 21

This project is a winner in the 2017 AIA Housing Awards in the One and Two Family Custom Housing category.

FROM THE AMERICAN INSTITUTE OF ARCHITECTS
Set in the harsh high desert of California, Sawmill is a family retreat embedded into the tough, scrubby landscape. Shaped by the challenges and opportunities of the remote site, Sawmill is self-sufficient and durable. Riffing on the tradition of tents around a campfire, the 5,200-square-foot house is comprised of three private zones or ‘tents’ surrounding a central family hearth. Each ‘tent’ projects out from the main gathering space: one zone for the parents and one for each of their two children — and, someday, their families and extended families. The owners conceive of this retreat as a lasting marker of their presence and legacy in the area—a welcoming convening space that will keep them coming back to this rural landscape that they’ve come to love and hope to preserve for generations.

Upcoming Events

  • Build-to-Rent Conference

    JW Marriott Phoenix Desert Ridge

    Register Now
  • Reimagining Sense of Place: Materiality, Spatial Form, and Connections to Nature

    Webinar

    Register for Free
  • Homes that Last: How Architects Are Designing a Resilient Future

    Webinar

    Register Now
All Events