Saul Zona 14

Project Details

Project Name
Saul Zona 14
Architect
Taller Ken
Shared By
Gregory Melitonov
Project Status
Built
Year Completed
2013

Project Description

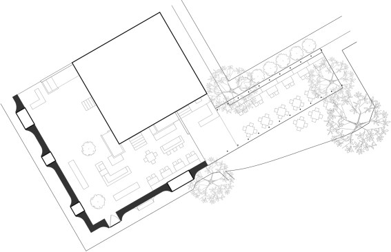
“Saul Z¬¬¬¬¬ona 14” is a house with many charms. Under one roof, we combine fashion, design, art, objects and food. Here, a union of culture and commerce full of surprises and small treasures entices clients and visitors to take the time to enjoy diverse experiences. It is a place to meet, to stop for a drink at the café, to shop at the store or to visit the terrace to have a long meal or just sit to read. The design’s playful qualities draw from cultural references.

The buildings the façade draws inspiration from surrounding architectural heritage of Guatemala City- namely the deep ornamental window niches of the preserved Spanish colonial. The buildings exterior surface is covered in molded fiberglass panels with a plaster stucco finish to achieve the smooth and stretched quality. The combined effects give the sensation the window is “actively” pushing it out from the wall. This has the pragmatic benefit of freeing valuable interior space and creating window-box vitrines for display. We drew inspiration from surrounding architectural heritage of Guatemala City- namely the deep ornamental window niches of the preserved Spanish colonial buildings

The exterior terrace features a colorful canopy, made of 1000 pounds of thread hanging from a steel structure, has tactile qualities of softness. The and is visually vibrant palette of greens and yellows blends and enhancing the surrounding vegetation. The source of our inspiration was the natural production techniques still used by indigenous people in Guatemala. The drying process of hanging treads is part of highly t traditional elements of craft culture. Ultimately this seemingly decorative element is highly pragmatic; acting as both a solar shade and sound absorbing surface which make the space cool and intimate.

The monochrome bathrooms are made with an interplay of geometric tiles by Aparici and mirror. They create an unexpected experience, like a fun house or a maze, where you don´t know where the spaces end.

Upcoming Events

  • Design Smarter: Leveraging GIS, BIM, and Open Data for Better Site Selection & Collaboration

    Live Webinar

    Register for Free
  • Slate Reimagined: The Surprising Advantages of Slate Rainscreen Cladding

    Webinar

    Register Now
  • The State of Residential Design Today: Innovations and Insights from RADA-Winning Architects

    Webinar

    Register for Free
All Events