SANTONI MEC

Project Details

Project Name
SANTONI MEC
Location
Shanghai, ChinaShanghaiCHINA
Architect
Bylu Design
Project Types
Commercial
Project Scope
Interiors
Shared By
Bylu Design
Project Status
Built
Year Completed
2019
Style
Modern
Team
Chief Architect: LUIGI ARCADU
Senior Architect: STEFANO BAI
Architect: SARA CIRIBIFERA
Architect: CHENEY CAO
Architect: YI ZHANG
Room or Space
Other

Project Description

Santoni launches new Materials Experience Center in Shanghai

Knitting machinery leaders Santoni, have officially opened their new Materials Experience Centre (MEC) at Santoni’s headquarters in Shanghai. The new space, designed by architects Bylu Design, is a contemporary research and inspiration centre for leading professionals the textiles industry to meet clients, research ideas and work on bespoke projects. It will be a pivotal space for inspiration, ideation, implementation and knowledge sharing.

Designing the future

The MEC is designed to meet the needs of a modern textile producer that consistently champions sustainability and futuristic design thinking when it comes to textile products. The addition of Santoni’s seamless and circular knitting technology makes this a winning partnership where the perfect synergy between material and design can be achieved. Santoni’s CEO, Gianpietro Belotti, said: “Establishing this new network has allowed us to think differently and to be ready to penetrate new frontiers. This will enable us to achieve our mission of inspiring world knitters with cutting edge solutions.”

Challenges and solutions

Santoni wanted a space that was flexible and easy to adapt to different uses and projects. To accomplish this goal, the architects designed the MEC with an adjustable hanging light system and low-levelled cabinets that were easy to move around. Simplicity and adaptability were central to the finished design. The idea was that the client could effortlessly slot in different products, samples and demonstrations within the space, using the areas provided.

The company also requested a space that was open, luminous and high-tech. To achieve this effect, Bylu Design used crisp white paint and a terrazzo floor which enhanced and reflected the light coming in from the windows. To create a technological feel, they added elements like metal mesh, stainless steel, LED walls and touchscreens. In the areas where the interior needed to feel warm and welcoming, wooden floors and pastel colours were used to create a more human ambiance. The result is a clean, sophisticated and airy space where one feels in harmony with all that is technological and futuristic.

An entrance that wows

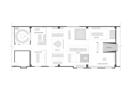
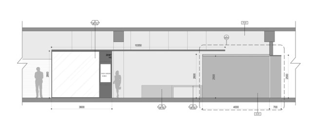
The space itself will be a key attraction to visitors who are meeting with Santoni Shanghai, and is comprised of an entrance, concept, exhibition area, feature room and lounge area. The first area that visitors encounter is the entrance, an area that connects the reception area of the Santoni factory with the Materials Experience Center. “This isn’t just an entrance,” said Chief architect Luigi Arcadu, “it’s an experience. It’s symbolic of the passage from the present to the future of knitting technology.” The outside of the entrance is the shape of a parallelepiped and is covered with aluminium stainless-steel panels. The interior is painted electric blue and has a slight reverse-funnel effect that ends on a 3x4m transparent LED wall. The resulting space is one that wows visitors from the moment they enter the showroom.

A space to explore and discover

The concept area is the second area you encounter; it contains two white cubes, digital screens for presentations and an LED wall, giving it an iconic feel. Next comes an impressive exhibition area that is dedicated to Santoni’s machinery, fabrics and production process. This space has been divided into three different zones, each of which stands out as unique thanks to their different hanging light systems, colour schemes and partitions. This creates an area that’s fun and dynamic, yet easy for visitors to roam around whilst examining samples or products. The idea of encouraging visitors to search, explore and discover was central to Santoni’s vision and the resulting design, says Creative Studio Director Eva de Laat.

The exhibition area also features low cabinets for showcasing samples, along with a framed glass area with a touchscreen incorporated. The glass touchscreen will be used for storytelling; it will be used to illustrate the function and the process behind each item. Additional information can be added in the form of stickers which, when overlapping the item on the screen, could be used to create the effect of augmented reality.

Areas for discussing samples and prototypes

A special feature room offers the chance to discover new products and textiles, giving visitors a view of the latest projects. The room is separated by a white metal mesh partition giving it a private and cosy feeling. A long wooden table in the middle provides an excellent focal point and area for discussing samples and prototypes.

The lounge area is the final destination, a comfortable, inviting place to relax and discuss projects. It contains a sofa with a raised wooden floor and mesh partition, giving it a warm and intimate feel. A ribbon window connects it to Santoni’s material library.

High tech sample library

Santoni’s material library is the finishing touch; an impressive automated storage room that can store over 2000 samples. A mechanical arm in the centre of the library will deliver any requested sample to the lounge area. This robotic aspect is sure to be a talking point with all who enter the space and is a nod to the ingenuity and technological innovation that Santoni, and its partners, are synonymous with. CEO Gianpietro Belotti commented: “The material library space is the pinnacle of our knowledge, the sum of our activities. Laboratory tests, innovative thinking, new designs and surprising outcomes are systematically collected and archived here. I dream of the day when the robot will run 24/7 to satisfy remote and on-site customers and their appetite for innovation.”

For more information about the Materials Experience Center, or any of its partners, contact mec@santoni.cn

Upcoming Events

  • Slate Reimagined: The Surprising Advantages of Slate Rainscreen Cladding

    Webinar

    Register Now
  • The State of Residential Design Today: Innovations and Insights from RADA-Winning Architects

    Webinar

    Register for Free
  • Specifying Smarter with Copper-Clad Aluminum (CCA) Metal-Clad Cable

    Webinar

    Register for Free
All Events