San Francisco Master Bath

Project Details

Project Name
San Francisco Master Bath
Architect
building Lab
Project Types
Single Family
Project Status
Built
Style
Traditional
Team
Room or Space
Bath

Project Description

Sharing a bathroom, especially with guests operating on
different schedules, can be challenging,. This condo had its owners sharing the
master bath with guests, so they decided to tackle the project right away to
avoid any complications. The goal was to create an en suite master bath that,
according to architect and builder Stephen Shoup, “would afford a sense of
privacy and strike a balance between original detailing and a modern spa-like
feel.”

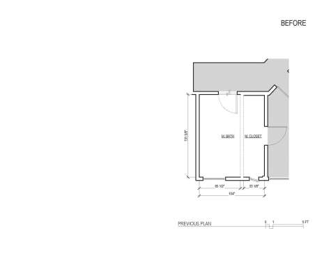
Key to this design was the condo’s ample storage space. Shoup
was able to take an existing closet and transform it into part of the new
bathroom, which gave enough space for the addition of the toilet and a second
sink. With only 94 square feet to work with, Shoup’s team didn’t have the generous
space sometimes associated with a master bath, but by emphasizing the owner’s streamlined
Scandinavian design leanings, they were able to craft a sense of space and
lightness.

Tall, thin mirrors help emphasize the room’s
high ceilings and reflect the large window’s natural light. The mirrors were
also custom-wrapped with LED lights, creating an even brighter space. The
shower is separated from the rest of the bathroom by glass partitions, with no
steps or doors, while the sinks are situated on custom walnut cabinets
suspended above the porcelain tile floor. 

See the video about the bath and more winners of the 2015 Remodeling Design Awards.

Upcoming Events

  • Design Smarter: Leveraging GIS, BIM, and Open Data for Better Site Selection & Collaboration

    Live Webinar

    Register for Free
  • Slate Reimagined: The Surprising Advantages of Slate Rainscreen Cladding

    Webinar

    Register Now
  • The State of Residential Design Today: Innovations and Insights from RADA-Winning Architects

    Webinar

    Register for Free
All Events