Salt Shack

Project Details

Project Name
Salt Shack
Location
PocassetMA
Project Types
Shared By
dmadsen
Project Status
Built
Size
2,270 ft²

Project Description

The Salt Shack is perched next to a lighthouse on a neck of land reaching deep into the bay. The house was designed as a modern reflection of a beautiful weathered fishing shack that has existed on the property for years and can be viewed from the house for future inspiration.

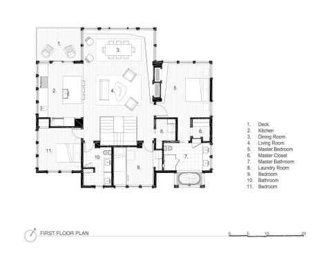
All of the rooms have fantastic views to the water and the boat traffic in the Bay and the contemporary design takes advantage of the requirement to be above the flood waters and elevates all of the living spaces into the view.

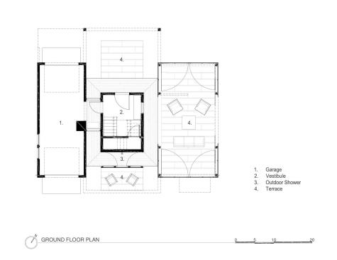
The use of weathered cedar siding in a horizontal language keeps the scale of the house appropriate to the neighborhood and allows for large movable wall panels to create private outdoor spaces under the building. The entry sequence begins with a large open volume under the house which draws you into the entry and a central stair that brings you up to the living area and re-orients you back to the view, feeling like the bridge of a ship with no view of the ground, only water.

Upcoming Events

  • Build-to-Rent Conference

    JW Marriott Phoenix Desert Ridge

    Register Now
  • Reimagining Sense of Place: Materiality, Spatial Form, and Connections to Nature

    Webinar

    Register for Free
  • Homes that Last: How Architects Are Designing a Resilient Future

    Webinar

    Register Now
All Events