Saint Paul Revisited

Project Details

Project Name
Saint Paul Revisited
Project Types
Project Scope
Renovation/Remodel
Project Status
Built
Year Completed
2016
Size
234 ft²
Room or Space
Kitchen

Project Description

2017 Remodeling Design Awards
Kitchen Remodeling over $100,000: Merit

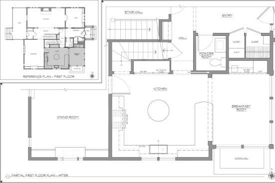
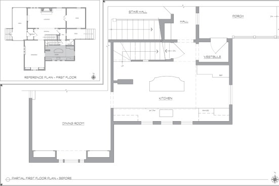
The challenge in this kitchen remodel was twofold: First, honor the wood-centric style of this 1907 Tudor Revival home while bringing light into the space; second, forge a connection to the outside.

That connection was created by knocking out the old kitchen’s back wall and creating an addition to make a space where the owners could hang out with family and friends. Architect Chris Christofferson brought to the table “the idea that this space could be designed to suggest a porch that had been infilled,” says studio founder David Heide.

With its beadboard ceiling—stained the color of coffee grounds to match the dark color of an existing front porch—and walls of windows showcasing the landscape, the space does exactly that.

A peninsula extending from the new kitchen’s counters anchors the space where the wall was removed. A large opening at the peninsula’s end signals the easy transition between the two rooms. Anyone working in the kitchen has sight lines directly into the new addition and backyard.

The addition, like the kitchen, has birch cabinets, windows, doors, casing, and floors. It also has wood-clad walls and a stenciled frieze, with a design appropriate to the style of the house, just below the ceiling.

With access to the original plans of the home, the architects knew that the back part of the house was birch, which guided their decision to use that wood species in the design.

“We chose red birch, because it mimics more the color of old-growth birch, and we used a shellac to give it an amber hue,” says Heide.

In contrast to all the wood, Christofferson used a pale quartzite on the counters and white subway tiles on the walls. Stainless steel appliances and cabinet hardware lend their own luster to the space, as do the milky iridescent hand-blown glass shades of the lighting fixtures.

“We designed all the lighting,” Heide says. “Each piece is made for a specific location.”

FROM THE FIRM:

In tandem with the owners, we worked to create governing principles for the project that helped them—and us—determine the balance of period detailing, materials, and finishes with a fresher perspective and more youthful sensibility. How to manage the quantity of wood within the space became a challenge we met by using lighter values for the stone tops and tile, and creating a stainless steel appliance alcove. While rooted in tradition, the design marries historic precedence with a contemporary kitchen and modern sensibilities. The work is respectful of the original house because it honors the spirit of 1907, while ensuring the viability of the house for years to come.

Upcoming Events

  • Design Smarter: Leveraging GIS, BIM, and Open Data for Better Site Selection & Collaboration

    Live Webinar

    Register for Free
  • Slate Reimagined: The Surprising Advantages of Slate Rainscreen Cladding

    Webinar

    Register Now
  • The State of Residential Design Today: Innovations and Insights from RADA-Winning Architects

    Webinar

    Register for Free
All Events