Saguaro Place

Project Details

Project Name
Saguaro Place
Project Types
Shared By
dmadsen
Project Status
Built

Project Description

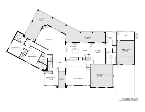
The original home at Saguaro Place was hit by lighting. When Adams Craig acquired the property the roof was in danger of falling down being held up by a 2’x4’ resting on cinder blocks. The design team value engineered the original floor plan re-purposing the existing foundation and enlarging the home to fit needs of a modern family. The soft contemporary home features sleek interior appointments in a neutral gray pallet. Adams Craig worked with an energy consultant to take full advantage of all opportunities supporting the company goal; create the most energy efficient, luxury, custom home possible. The construction team deconstructed, recycling when possible and saving materials that were identified for salvage. A portion of the original slab and trusses were saved. The slab was shored up and expanded to increase the square footage of the home. Beams were added to the roof and a new home was framed. The walls system includes existing ABS block and 2”x6” with Icynene® Smart Spray Foam Insulation in the roof and walls as well as all new utilities. Saguaro Place features Control4, 6 kilowatt Echo Solar Hybrid System by Sun Edison® and a Hydron Module Split Geothermal Heat Pump System. Honoring the local climate, a NanaWall in the main living area allows the outside in. Landscape includes small thoughtfully placed turf, low water use plants, resort pool and spa, self-sustaining rainwater harvesting pond, roof tiles from the previous home crushed as ground cover and raised garden beds built from salvaged lava rock.

The master bath is finished with a beautiful mix of Bianco Carrara marble counters and shower with grey quartzite tile floors. A sleek with free standing tub positioned in front of a picture window is the centerpiece of the room. The shower features sever WaterSense labeled body sprayers and an overhead shower head for maximum relaxation.

This 5,000+ SF home will be Energy Star Certified and National Green Building Standard™ Gold/Emerald level. New construction builders in the Phoenix Metro area are notorious for scraping lots or using vacant land. What sets Saguaro Place a part from other custom homes is the respect shown during the construction process to the existing resources and the continued effort to incorporate them whenever possible. Adams Craig believes in sustainable building practice because the end result fuses science with beauty making Saguaro Place a better, healthier more comfortable home for the future owner to enjoy.

Upcoming Events

  • Slate Reimagined: The Surprising Advantages of Slate Rainscreen Cladding

    Webinar

    Register Now
  • The State of Residential Design Today: Innovations and Insights from RADA-Winning Architects

    Webinar

    Register for Free
  • Specifying Smarter with Copper-Clad Aluminum (CCA) Metal-Clad Cable

    Webinar

    Register for Free
All Events