Sagaponack Modern Green Barn

Project Details

Project Name
Sagaponack Modern Green Barn
Location
SagaponackNY
Architect
STOTT ARCHITECTURE
Project Types
Single Family
Project Status
Built
Year Completed
2015
Size
7,500 ft²

Project Description

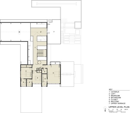
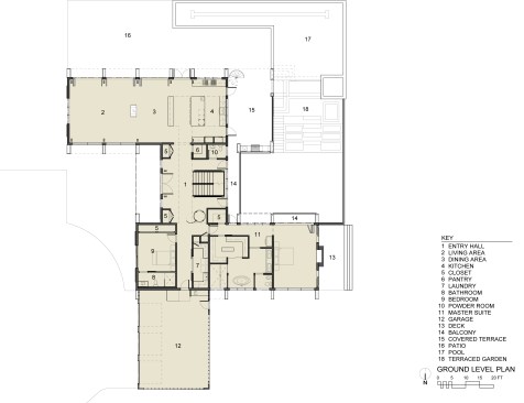
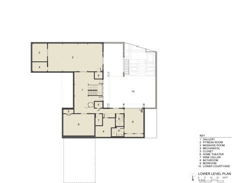
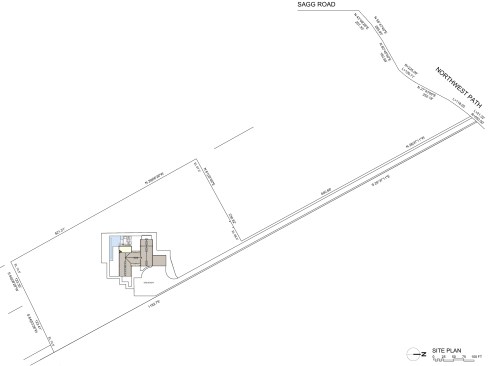
Sagaponack Modern Green Barn Sagaponack, NY Completed: 2015 Project Category: ARCHITECTURE To “trip the light fantastic” means to dance nimbly. This house encourages movement and play, it lifts one’s spirit and plays on the words of Lawler’s 1894 song; “ . . . me and Mamie O’Roarke, tripped the light fantastic, on the sidewalks of New York.” This three level home, inspired by vernacular Long Island potato barns, was designed with sustainability as a key goal. Passive Solar principals applied to this home provide full sun in winter and shade to the door thresholds in summer. The basement level courtyard allows sunlight to penetrate deep into the lower levels of the basement. In winter, the low sun angles even reflect daylight back into otherwise dark spaces of the basement level. This unique home received 6, 3rd party ratings: A LEED SILVER rating, a National Green Building Standard – Platinum rating, Energy Star, the Department of Energy Challenge Home, Indoor Air Plus and Water Sense certificates. The pilasters appear in daylight to be opaque and made from the same stucco backing as the rest of the walls. The pilasters conceal all downspouts as well as structural steel in the courtyard. A magical transformation occurs as the sunsets. The opacity of the wood-slatted pilasters, a nod to the structural buttresses of the potato barn, shifts at dusk, and diffused light begins to glow through the polycarbonate-backed wood slats from LED lights concealed in the top of the pilasters. From inside, the Kalwall gable ends light up, and distribute daylight softly and evenly. At night, soft interior light escapes to light up the vertical slats and adds to the lantern effect of the pilasters. For both thermal efficiency and labor saving principals, the shell is constructed entirely of 8” Magnesium-oxide SIPS wall panels (R-36) and 10” thick steel skin SIPS roof panels (R-45). The exterior of the wall panels were simply stucco finished after installation. The SIPS panels of the roof are exposed on the inside and simply painted, with no further preparation required. The Foundation walls are pre-insulated manufactured panels, set on a gravel footings (R-21 + R-13 batt insulation added in field). Exposed and unfinished engineered beams allow for open ridge skylights made of Kalwall, and invite soft light into every room. Large open spaces, catwalks and lofts add to the barn-like atmosphere. Triple-glazed windows and folding doors (Avg. U-Factor: .14) allow the house to be open to the pools, patios, decks and covered porches that surround the perimeter. The building is compact and easy to maintain, it is fun, yet sophisticated. Movies can be viewed outside, on the courtyard wall, or inside in the homer theater. Inside, there is drama in every direction. Daylight brings true color to artwork and people and the structure is exposed and infused into every space. At night the outside comes alive, defining the myriad areas to sit and watch those who nimbly “trip the light fantastic”.

Upcoming Events

  • Design Smarter: Leveraging GIS, BIM, and Open Data for Better Site Selection & Collaboration

    Live Webinar

    Register for Free
  • Slate Reimagined: The Surprising Advantages of Slate Rainscreen Cladding

    Webinar

    Register Now
  • The State of Residential Design Today: Innovations and Insights from RADA-Winning Architects

    Webinar

    Register for Free
All Events