S House

Project Details

Project Name
S House
Location
72-8, Unjung-dong, Bundang-guSeongnam-siGyeonggi-doSOUTH KOREA13455
Architect
EAST4
Project Types
Single Family
Project Scope
New Construction
Shared By
MasilWIDE Communication
Project Status
Built
Year Completed
2012
Style
Modern

Project Description

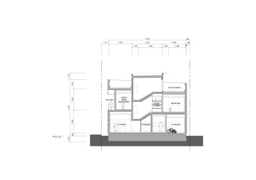
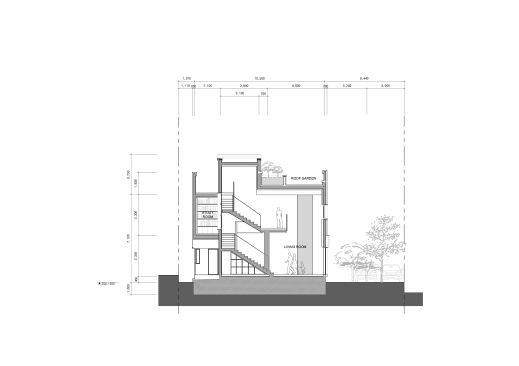
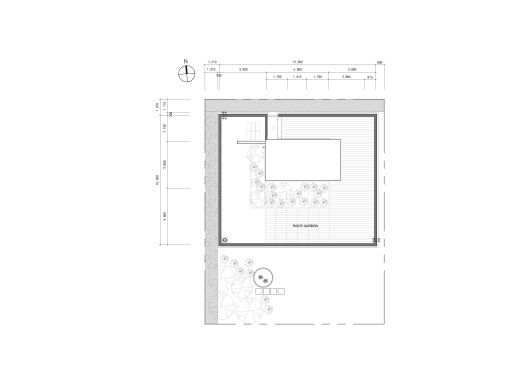
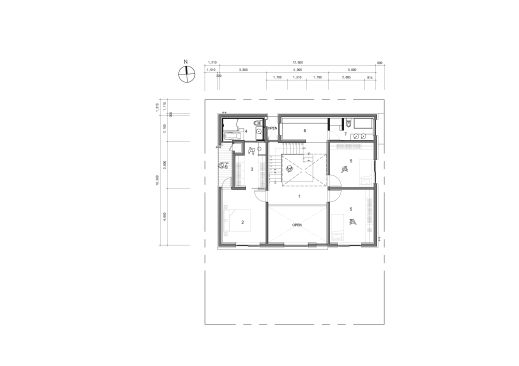
The Architect organized previous Client’s preferences into a Client Code. The configuration of the S House is consisted with 5 family members including Mr. and Mrs. S, two daughters and their grandmother. During the design process, the artist client provided joy with their unique imaginations and a house was designed perfectly suitable for their two children. Mr. S, the sole male within the family, had frequent international business trips and was mainly concerned about the security of the house and the Architect mainly focused on easing Mr. S’s concerns.
As a result, the front door of the house was allocated near the main road away from the parking lot due to the idea that it would be better to expose the visitors. Furthermore, locating windows, yards and other detailed programs were developed within the same vein. Window opening were restrained besides the enormous south window. However, a three dimensional connection was created by designing a continuous void among the first and second floors and the interior windows was located throughout the house to provide natural sunlight. Along with the north louver windows, electrically operated windows were installed in consideration of sunlight and ventilation.
A bright, high density wood panels and clay bricks were used for exterior materials to go along with the S Family. Though the high density wood panels are expensive which even possesses 1/3 of the construction cost, the Client preferred a non-transformational, durable, high stain resistant material. Other materials were under consideration as well, but the high density wood was chosen for its consistent appearance for 30 years. The white paint and birch tree materials were selected for the main interior finishing materials to also fit the bright image of the entire family. A family park and vegetable garden was designed at the rooftop which blends into the sky.Written by Joon H. Park

Upcoming Events

  • Slate Reimagined: The Surprising Advantages of Slate Rainscreen Cladding

    Webinar

    Register Now
  • The State of Residential Design Today: Innovations and Insights from RADA-Winning Architects

    Webinar

    Register for Free
  • Specifying Smarter with Copper-Clad Aluminum (CCA) Metal-Clad Cable

    Webinar

    Register for Free
All Events