Rutgers Tillett Hall Renovations

Project Details

Project Name
Rutgers Tillett Hall Renovations
Location
53 Aveneue ERutgers Livingston CampusPiscatawayNJ08854-8040
Architect
Clarke Caton Hintz
Project Types
Education
Shared By
Archumb
Project Status
Built
Year Completed
2013
Size
123,870 ft²

Project Description

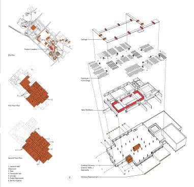
The purpose of this project was to convert one of the first buildings constructed on the Rutgers University Livingston Campus (a former dining hall) into a classroom building. The existing concrete structure was designed by Anderson Beckwith and Haible in the late 1960’s and as with many buildings of that time period, it features very durable finishes such as terrazzo, interior brick, and exposed aggregate poured in place concrete. While the existing finishes have endured over 40 years of use, the lack of color and adequate lighting resulted in dark, dreary spaces. The building had become one of the least popular buildings on campus (earning it the nickname of “Kazakhstan”).

The design approach was to introduce colors, textures, and lighting that would enhance the best features of the existing building, with as little intervention as possible. The new building program includes over seventeen classrooms and lecture halls, new breakout and lounge areas, computer labs, academic support spaces, and a renovated central postal facility. The existing concrete waffle slab floor structure was exposed in most classroom spaces and lit dynamically with pendent lights. Classroom spaces were organized around the perimeter of the building to maximize daylighting and views and to reduce the amount of lighting load throughout the day. The relatively low ceilings of the corridors were disengaged from the walls so that the building utilities are accessible but out of view, and to provide an additional sense of space.

The completed project is the largest general purpose classroom building on this campus and is the first building lit solely by LED’s for the University. The lighting is broken into at least five zones in each classroom to allow for maximum control and minimal energy use. Sound amplification is used in each classroom and lecture hall and so the classroom walls were constructed to eliminate virtually all noise from adjacent classrooms and mechanical devices. Over seventy percent of the building’s power is fed from the campus’ 9.4 megawatt solar array and solar parking canopies.

The interior material palette features rich reds and oranges to act as a counterpoint to the existing terrazzo, concrete, and brick. Recycled wood pulp panels were utilized at millwork and wood ramps. The carpet tiles were selected to add color and texture to the spaces as well as for the maximum use of recycled content. The furniture colors and fabrics were selected for their design impact as well as for their recycled content and their “cradle to cradle” certification.

Upcoming Events

  • Design Smarter: Leveraging GIS, BIM, and Open Data for Better Site Selection & Collaboration

    Live Webinar

    Register for Free
  • Slate Reimagined: The Surprising Advantages of Slate Rainscreen Cladding

    Webinar

    Register Now
  • The State of Residential Design Today: Innovations and Insights from RADA-Winning Architects

    Webinar

    Register for Free
All Events