Rubey Park Transit Center

Project Details

Project Name
Rubey Park Transit Center
Location
AspenCO
Project Types
Project Scope
New Construction
Shared By
Ashleigh Popera
Project Status
Built
Year Completed
2016
Size
2,950 ft²

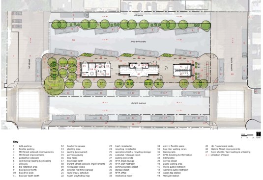
Project Description

FROM THE ARCHITECTS:

The Rubey Park Transit Center in the heart of Aspen serves the City of Aspen and increasing ridership for the Roaring Fork Transit Agency (RFTA). The new vision incorporates a former structure and expands its program to include enlarged pedestrian waiting areas, improvements to the public restrooms, adds new staff lounge, offices and ticket booth with significant landscape and civil engineering improvements. The three distinct volumes are united with an extended roof canopy composed of exposed wood purlins, fritted glass and zinc that supports the large solar array providing the majority of its energy requirements. The building materials are brick, zinc, metal windows/doors with the public benches, bike storage, event information stands and ‘living’ walls adding scale to its active street façade.

Upcoming Events

  • Design Smarter: Leveraging GIS, BIM, and Open Data for Better Site Selection & Collaboration

    Live Webinar

    Register for Free
  • Slate Reimagined: The Surprising Advantages of Slate Rainscreen Cladding

    Webinar

    Register Now
  • The State of Residential Design Today: Innovations and Insights from RADA-Winning Architects

    Webinar

    Register for Free
All Events