Rosehill Ridge

Project Details

Project Name
Rosehill Ridge
Location
TexarkanaTX
Architect
BGO Architects
Project Types
Affordable Housing
Shared By
dmadsen
Project Status
Built
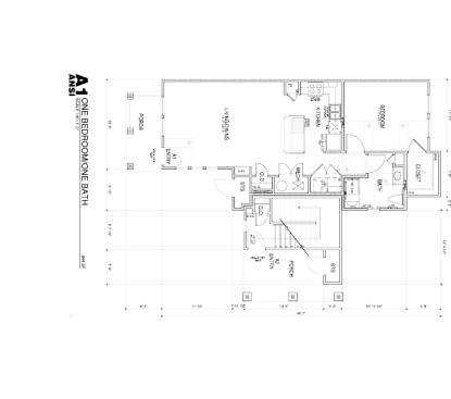
Size
1,551 ft²

Project Description

We wanted to create an environment that fit within the context of the neighborhood. Most of the surrounding buildings
are single family homes. Since density was key, we used a mix of townhomes and flats to maintain the community
atmosphere. The architectural style was decided upon by wanting to immitate the surrounding homes. Most of the homes
are of a traditional styling (craftsman, arts and crafts, etc.) The materials we utilized are typical of that style of
architecture. Another goal, we wanted to integrate the existing neighborhood street layout into the internal drives. We
aligned drive entries with residential streets so the area felt like a neighborhood, as opposed to an apartment complex
separated from the rest of the community.
The major site constraint/opportunity was a creek along the backside of the property. There was a 100 year flood plain we
needed to avoid. A great benefit, was that this creek also provided for a unique natural backdrop for the residents.
As with every project, the topography brought up many challenges relating to accessibility, but we were able to work around it, still achieveing the desired results and meeting requirements.

Upcoming Events

  • Build-to-Rent Conference

    JW Marriott Phoenix Desert Ridge

    Register Now
  • Reimagining Sense of Place: Materiality, Spatial Form, and Connections to Nature

    Webinar

    Register for Free
  • Homes that Last: How Architects Are Designing a Resilient Future

    Webinar

    Register Now
All Events