Rodin 33

Project Details

Project Name
Rodin 33
Location
Mexico City
Architect
Carlos Marin
Project Types
Multifamily
Project Scope
New Construction
Shared By
Symone
Project Status
Built
Year Completed
2016
Size
12,916 ft²

Project Description

FROM THE ARCHITECT:

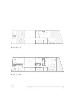
The apartment building is located in a narrow site, with the dimensions of (7.8m wide by 28m long,) on Rodin 33 street., Tthis conditions demands an accurate lecture of the architectural program. Tto optimize the interior space, we decided to look forward for a structural systemsistem that would allow us to enjoy the open space.

The living room and dinner room are clearly connected to the exterior terraces taking the widest side of the site (7.8 meters). One apartment is located on eachby floor, allowing to the user to take an interesting view of the Mexico Ccity skyline.

The façade is molded by a 20 square meters terrace that is contained by a concrete frame structure;, this semiopen terrace allows to the user to transform the space in an hybrid condition between interior and exterior space. Iin this way, the inhabitant can increase or decrease the interior space by the displacement of the glass façade.

Tto provide natural lighting for each living space of the building we decided to create an interior 6 meters patio;, this void divides the public and privativeprivate areas.

Two lateral walls of reinforced concrete are combined together with ten10 foundation piles 18 meters deep to support the entire structure of the building. Transversely a series of reinforced concrete beams running side by side defines each apartment floor. In parking lots you can appreciate the constructive system used throughout the development, and in this space the structure remains exposed. This constructive system allows us to optimize construction time. In two basements, we placed, the lobby, two parking floors, elevators, engine rooms, water tank, services, and storage rooms.

This text has been lightly edited for clarity.

Upcoming Events

  • Slate Reimagined: The Surprising Advantages of Slate Rainscreen Cladding

    Webinar

    Register Now
  • The State of Residential Design Today: Innovations and Insights from RADA-Winning Architects

    Webinar

    Register for Free
  • Specifying Smarter with Copper-Clad Aluminum (CCA) Metal-Clad Cable

    Webinar

    Register for Free
All Events