Ring of Hope

Project Details

Project Name
Ring of Hope
Location
ChicagoIL
Project Types
Project Scope
New Construction
Shared By
katie_gerfen
Project Status
On the Boards/In Progress
Size
24,000 ft²

Project Description

This project won an honorable mention in the 2019 Progressive Architecture Awards

“I’ve always liked the rawness of a material architecture, and this one fits into that category. There’s an art-making aspect to this project, and I think that has to do with the limited materials.” —J. Frano Violich, FAIA

Paul Preissner Architects’ Ring of Hope in the firm’s hometown of Chicago is a multiuse public facility with a forthright, boldly stated civic character. A robust exterior of corrugated concrete panels combines with slightly irregular massing and upper-level terraces to create a stirring urban statement that recalls the best of the Brutalist tradition.

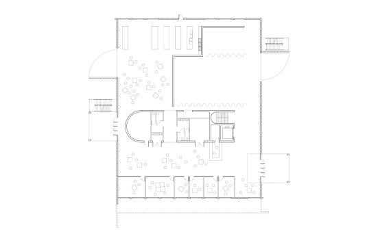
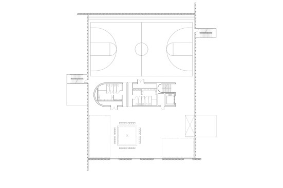
But this is no late-modernist rehash. Ridged and speckled, looking almost more like stacks of wooden logs, the surface has a rare kind of haptic allure: The panels shift past and over each other, promising a sense of tectonic movement and a beguiling interplay of light and shadow. More importantly, the interior scheme manifests a complexity and a dynamism that’s unquestionably contemporary—as it needs to be to accommodate the unusually diverse program of the non-for-profit client. Food services, seminar rooms, a boxing gym, a basketball court, office spaces and refuge spaces, are all found within—all much-needed assets for the disadvantaged minority neighborhood of Greater Grand Crossing on the city’s South Side.

Accordingly, the designers have opted for a rich mixture of discrete and free-flowing spaces, the two floors of the building’s steel-and-concrete core allowing it to remain free of vertical supports and packed to the brim with functionality. In perhaps its most ingenious moment, the lively inner life of the building can be exposed for all to see courtesy of openable panels, located to the north and south, that can be pulled aside to let activity spill into the streets or to invite the neighbors in.

Pairing an innovative 21st-century design approach with an intrepid, optimistic spirit that seems to belong to a bygone era in the country’s political life, Preissner’s Ring of Hope represents a real attempt (to recall Lyndon Johnson) to find an American solution for an American problem.

Project Credits
Project: Ring of Hope, Chicago
Client: Ring of Hope . Anthony Wright
Architect: Paul Preissner Architects, Oak Park, Ill. . Paul Preissner, AIA, David Ramis
Structural Engineer: Goodfriend Magruder Structure
Size: 24,000 square feet
Cost: $6 million

Upcoming Events

  • Design Smarter: Leveraging GIS, BIM, and Open Data for Better Site Selection & Collaboration

    Live Webinar

    Register for Free
  • Slate Reimagined: The Surprising Advantages of Slate Rainscreen Cladding

    Webinar

    Register Now
  • The State of Residential Design Today: Innovations and Insights from RADA-Winning Architects

    Webinar

    Register for Free
All Events