Richard Gilder Center for Science, Education, and Innovation

Project Details

Project Name
Richard Gilder Center for Science, Education, and Innovation
Location
Central Park West at 79th StreetNew YorkNY10024-5192
Project Types
Project Scope
Addition/Expansion
Shared By
katie_gerfen
Project Status
On the Boards/In Progress
Size
230,000 ft²
Team

Project Description

This project was selected as a winner in the 67th Annual Progressive Architecture Awards, and was featured in the March 2020 issue of ARCHITECT.

Award

“I like the material exploration, and there’s an eye here—a good eye. It is hard to pull off formally, but the idea of the ice and the glacier brings a great clarity to it. And it seems appropriate for a natural history museum.” —juror Lorcan O’Herlihy, FAIA

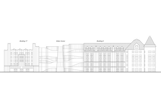
Since it opened on Manhattan’s Central Park West in 1877, the American Museum of Natural History has grown into an improbable hodgepodge of buildings, ranging from Neo-Gothic to Neo-Romanesque to Neoclassical. Now, it’s set to receive a robustly contemporary addition—and a much-needed one, allowing it both to expand its exhibition spaces and to give a public face to its long-neglected backyard. Studio Gang’s Richard Gilder Center for Science, Education, and Innovation is at once an urbanistic coup and a daring museological experiment.

A lofty central exhibition hall forms the spine of the new wing, and it forges an immediate connection with the material on display: Warped and biomorphic, the structure’s design is influenced by the form-making forces of ice and water, expressed through an innovative concrete blend; its cavernous nooks and crannies give the visitor a thrilling sense of discovery. The adventure continues in the adjacent exhibition spaces, including a new section devoted to insects and another to butterflies, as well as educational spaces, a lecture hall, and more, all arrayed around the main entry foyer and accessible through the catacomb-hollows of the concrete core.

As the crowds circulate freely through the building’s passageways, they’ll catch glimpses of scientists hard at work in adjacent study spaces—picking apart fossils or examining rare specimens—courtesy of a new open-storage system that will bring an enormous amount of the museum’s back catalog into public view. And as if all this interior dynamism weren’t enough, Gang’s solution also provides for a dramatic new exterior on the Columbus Avenue side, complete with a public plaza enfolded by the canyon-like forms of the Central Hall. The museum complex, which has always turned its back on its Upper West Side neighbors, now presents them with an extraordinary new entryway, a tantalizing foretaste of the treasures within.

Project Credits
Project: Richard Gilder Center for Science, Education, and Innovation, New York
Client: American Museum of Natural History
Architect: Studio Gang, Chicago . Jeanne Gang, FAIA (founding principal/partner); Weston Walker, AIA (design principal/partner)
Executive Architect: Davis Brody Bond, New York . Carl F. Krebs, FAIA (partner); Mark Wagner, AIA (associate partner)
Internal Team: American Museum of Natural History, Curatorial and Exhibition Design
Exhibition Designer: Ralph Appelbaum Associates
Structural/Acoustical Engineer: Arup
MEP/FP Engineer/Façade Consultant: BuroHappold Engineering
Civil/Geotechnical Engineer: Langan
Construction Manager: AECOM Tishman
Landscape Architect: Reed Hilderbrand
Lighting Designer: Renfro Design Group
Owner Representative: Zubatkin Owner Representation
Signage Design: Pentagram
Theater Design: Tamschick Media+Space with Boris Micka Associates
Sustainability: Atelier Ten
Vertical Transportation: Van Deusen & Associates
Loading Dock: Kleinfelder
Information Technology: Shen Milsom Wilke
Security: Ross & Baruzzini | DVS
Cost Estimating: Cost+Plus
Stone: Vincent Marazita
Preservation: Higgins Quasebarth & Partners
Collections/Labs: Walter Crimm Associates
Size: 230,000 square feet
Cost: $383 million

FROM THE AMERICAN MUSEUM OF NATURAL HISTORY, NOVEMBER 2015:
The
Board of Trustees of the American Museum of Natural History (AMNH) today endorsed the
conceptual design for the Richard Gilder Center for Science, Education, and
Innovation, a new building that will invite visitors to experience the Museum
not only as a place of public exhibitions but as an active scientific and
educational institution. In addition, the Board authorized proceeding to
schematic design.

Designed
by architect Jeanne Gang, FAIA, of Studio Gang Architects and set into the Columbus
Avenue side of the Museum complex at 79th Street, the Gilder Center is the
embodiment of the Museum’s increasingly integrated mission of science,
education, and exhibition. At a time of urgent need for better public
understanding of science and for greater access to science education, the
Gilder Center will offer visitors, including the general public and school
groups, new ways to learn about science and to share in the excitement of
discovery. To ensure that the next generation has the skills and imagination
for scientific innovation, the Gilder Center will provide interdisciplinary
learning spaces that place STEM (science, technology, engineering, and math)
and other educational experiences in the context of world-class scientific research
and collections.

The
conceptual design for the Gilder Center is consistent with longstanding but
previously unrealized aspects of the Museum’s 1872 master plan, while
reflecting a contemporary architectural approach that is responsive to the
Museum’s mission and to the current uses and character of the surrounding
Theodore Roosevelt Park and neighborhood.  

“The Gilder Center embraces the
Museum’s integrated mission and growing role in scientific research and
education and its enhanced capacity to make its extensive resources even
more fully accessible to the public,” said Museum President Ellen V.
Futter. “It will connect scientific facilities and collections to
innovative exhibition and learning spaces featuring the latest digital and technological
tools. Jeanne Gang’s thrilling design facilitates a new kind of fluid,
cross-disciplinary journey through the natural world while respecting the
Museum’s park setting.”

 

Architectural Concept

In
developing the architectural concept for the new Center, Jeanne Gang worked
from the inside out.  She saw an opportunity to reclaim the physical heart
of the Museum and to complete connections between and among existing Museum
galleries and new space, leading to a conceptual design that includes links to
10 Museum buildings through 30 connections. 

“We
uncovered a way to vastly improve visitor circulation and Museum functionality,
while tapping into the desire for exploration and discovery that are emblematic
of science and also part of being human,” said Gang. “Upon entering the space,
natural daylight from above and sightlines to various activities inside invite
movement through the Central Exhibition Hall on a journey towards deeper
understanding. The architectural design grew out of the Museum’s mission.”

In
designing the Central Exhibition Hall, which will serve as the Museum’s
Columbus Avenue entrance, Gang came up with the core idea of connecting this
space to the geographic center of the Museum. Informed by processes found in
nature, the gallery forms a continuous, flowing spatial experience along an
east-west axis, allowing visitors to move beneath and across connective bridges
and along sculpted walls that house the Museum’s many programs. Recessed
cavities in the sculptural walls create niches that will house exhibition
elements designed by Ralph Appelbaum Associates, as well as laboratories,
imaging facilities, visualization theaters, and classrooms while also revealing
more of the Museum’s extensive scientific collections. Following Studio Gang’s
signature approach, in which material and structure are expressed for their
inherent properties, the reinforced concrete walls of the Central Exhibition
Hall, with its arches and niches, will have more than a purely aesthetic
purpose: they will form the weight-bearing structure of the building’s
interior. 

The visual language of the Central
Exhibition Hall informed the conceptual design of the façade, which imagines
the interior walls emerging and wrapping around the exterior. The exterior will
be clad in glass and stone, which will be selected in the upcoming design phase
with consideration of materials used in the existing complex. The conceptual
design maintains the current heights of the Museum building complex on its
western side, placing the Columbus Avenue façade at the same height as the
buildings on either side of the new entrance. On the south side, the façade is
aligned with the adjacent building and steps back to meet the bordering
building to the north. The conceptual design is consistent with the axial
intention of the original 1872 master plan while recognizing the park setting
in which the Museum is located.

The
design greatly enhances visitor circulation at a museum where annual attendance
has grown from approximately 3 to 5 million over the past several decades. It
connects an array of existing galleries to new ones in ways that highlight
intellectual links across different scientific disciplines, create adjacencies
among and facilitate interaction within classrooms, laboratories, collections,
and library resources, and place educational experiences within current
scientific practice.

“With active learning environments
for classes and the general public that better align with the highly interdisciplinary
world that we live in, the Gilder Center will reveal the latest scientific
thinking and its relevance to many of the most important issues of our time. It
will enable learners of all ages and backgrounds to better understand the world
around them and their place in it. It will also connect for the first time,
both physically and intellectually, many of the Museum’s existing galleries,
thereby vastly improving visitor circulation and experience,” said Futter.

“We
are focused on the needs of 21st-century learners, offering unparalleled
opportunities to engage with science and scientists. The exhibits in the
Gilder Center will incorporate a blend of innovative learning strategies
and imaging technologies with the Museum’s extraordinary collections and far-
reaching scientific research,” said Ralph Appelbaum of Ralph Appelbaum
Associates.

Mobile
technology will be integrated throughout the new Center for seamless links
between onsite and digital visitor journeys of discovery, a fully realized extension
of what the Museum first piloted in 2010 with the introduction of the first
indoor-navigation app, Explorer, which is currently being updated with more
personalized and contextualized features. 

 

Science
and Education at the Museum

Since its founding in 1869, the
Museum has had a dual mission of science and education. Over the last two
decades, these two aspects of the mission have become increasingly integrated.
The Museum has established the Richard Gilder Graduate School, which grants
both the Ph.D. degree and the degree in Master of Arts in Teaching with a
specialization in Earth science. It works with partners on the national, state,
and local levels to pilot and develop innovative programs that leverage its
unique scientific resources to help address challenges in STEM education,
substantially extending its role in enriching formal science education and in
providing professional development for teachers. The Museum’s robust and
growing portfolio of educational programs includes partnerships with schools,
teacher professional development programs, and out-of-school programs for
students that offer authentic research experiences, introduce digital tools of
science, and explore college and career opportunities.

Major
initiatives include the Urban Advantage Program, spearheaded by the Museum in
partnership with seven other cultural institutions, the New York City
Department of Education, and the Council of the City of New York, which this
year will serve about 800 teachers in about 45 percent of the City’s middle
schools across all five boroughs and which reaches approximately 80,000
students; onsite professional development offerings for roughly 4,500 teachers,
ranging from intensive workshops to introductions to the Museum and learning
resources for their students; and out-of-school programs for students from
pre-K through high school that serve approximately 2,500 participants a year.
The demand for these educational offerings, as well as participation, has grown
across the board, but the space dedicated to education classrooms is
insufficient, out of date, fragmented, and difficult to access. By both adding
and updating learning spaces, the Gilder Center will significantly enhance the
Museum’s capacity to serve New York students, teachers, and families.

“The
American Museum of Natural History is so many things to New York: a
cutting-edge research institution, an educational powerhouse, and a resource
that New Yorkers and their families have enjoyed for generations,” said acting
Cultural Affairs Commissioner Edwin Torres. “We look forward to working with
the Museum to create an asset that allows residents and visitors even greater
access to its extraordinary programming and exhibitions.”

 

Exhibition and Program Elements

More than any other gallery, the Central Exhibition Hall and the niches housed
in its walls will reveal the Museum as an active scientific and educational
institution with closely integrated educational experiences, scientific
resources, and exhibition areas. The public will be able to engage with
innovative tools used by Museum scientists, such as the tools used for gene
mapping, 3D imaging, and big data assimilation and visualization, to gain a
deeper understanding of nature’s complexity and how science is conducted today.
 

The
Central Exhibition Hall will include a variety of education areas for learners
of all ages and levels, including approximately the 500,000 visitors who come
to the Museum as part of school and camp groups each year. Students of all
backgrounds will have opportunities to observe and participate in the processes
of scientific discovery in spaces designed to facilitate cross-disciplinary
thinking and personalized learning.

 “A
distinctive strength of the Museum’s educational programs is that they offer a
connection to actual scientific work, practitioners, and the tools and methods
of scientific thinking and research. The Gilder Center will extend this
experience to all visitors, providing a way for all to ask questions and to
connect the dots between scientific discoveries and our daily lives,” said
Futter.

Closely
integrated exhibition and program elements in development include:

·        
The Collections Core, a vertical
feature spanning several floors that will showcase a working section of the
Museum’s world-class collections and the activities of researchers who come to
study its invaluable specimens and artifacts, which together form an
irreplaceable record of life on Earth.

·        
The Invisible Worlds Theater, an
immersive theater that will reveal new frontiers of scientific research
made accessible with new imaging technology, from the intricate architecture of
the human brain to our microbial ecosystem, and from the shadowy depths of the
ocean to the outer reaches of the atmosphere.

·        
The Museum Library—one of the
largest and most important natural history libraries in the world, which will
now be revealed and made accessible to visitors and will offer a space for
reading and contemplation surrounded by spectacular views of the Central Exhibition
Hall and Theodore Roosevelt Park.

·        
An insect hall, which will showcase
the variety of one of Earth’s most diverse and abundant groups with specimens
from the Museum’s insect collection, one of the world’s largest and most
diverse collections of its kind, and live insects. The hall also will be the
new home of the Museum’s popular live butterfly conservatory.

·        
An interpretive wall, located at the
center of the Museum’s building complex, which will orient visitors, facilitate
way-finding, and spark further exploration by showcasing current science,
illuminating important concepts such as geologic time scales and evolutionary
relationships, and issuing real-time updates on the pulse of our planet in a
mosaic of video, data imagery, and interactive exhibits. The interpretive wall
will not only anchor the onsite visit but will also become a crucial part of a
seamless visitor journey that integrates onsite experiences with visitors’
digital interactions with the Museum. 

·        
Exhibition niches,
a series of open, recessed chambers with exhibitions that will connect the
wonders of the natural world with our own powers of perception and sensation.
Visitors will experience such phenomena as the deep blue light emitted from the
depths of an ice cave, the sounds of a tropical rain forest teeming with life,
and the ultrasound cries of bats in the night sky and of whales in the deep
ocean—sounds that are out of range to the human ear without the aid of
sensitive sonars.

·        
Educational laboratories and classrooms, which will directly address the need to enhance STEM
teaching and learning and enable teachers and students to access the Museum’s
extensive scientific resources. New facilities in the Gilder Center will allow
students to carry out research projects in data visualization and assembly that
mirror those conducted by Museum scientists and better prepare them for
secondary education and the workforce. Classrooms featuring the latest digital
and technological tools will be connected to scientific facilities and collections,
and will offer innovative spaces for teaching science to middle school, early
childhood, family, and adult learners.   

·        
Scientific laboratories,
which will be equipped with powerful state-of-the-art optical and electron
microscopes, CT scanners, and workstations for 3D reconstruction and animation,
will enable Museum scientists to image and analyze extensive amounts of
information resident in fossil organisms, meteorites, and even cultural
objects—all at levels of detail and accuracy that far exceed anything thought
possible even a few years ago. Adjacent spaces will be devoted to investigators
conducting computational research on big data produced through these detailed
visualizations, with visitors having opportunities to observe ongoing lab
investigations and resulting visualizations.

 

Project Information  

The
Gilder Center is named for Museum Trustee Richard Gilder, who has donated more
than $125 million to the Museum, including $50 million for the new center. The
project cost is estimated to be $325 million, of which more than half has been
raised.

Approximately
80 percent of the 218,000-square-foot project will be located within the area
currently occupied by the Museum, creating vital connections throughout the
complex. Three existing buildings within the Museum complex will be removed to
minimize the impact on land that is now open space in Theodore Roosevelt Park
to about 11,600 square feet (approximately a quarter acre).

 

Project Team

In
addition to Studio Gang Architects and Ralph Appelbaum Associates, the Museum
has engaged landscape design firm Reed Hilderbrand to work with the Parks
Department on a proposed design for the part of the Theodore Roosevelt Park
that borders the new Gilder Center.

The
project management team on the project is Zubatkin Owner Representation.

 

Museum
Architectural History

 

The
history of the Museum’s architecture has always been an interplay between the
original master plan, the evolution of architectural styles, and the
institution’s changing functional, scientific, educational, and technological
needs. The original master plan, which envisioned a great square with rigorous
symmetry in the four street façades, was realized in the south façade but only
partially completed in the north, east, and west sides of the Museum complex.

The
Gilder Center conceptual design is consistent with the master plan while
continuing the Museum’s long history of expressing its institutional identity,
and the science of the day, in an architectural language that is fitting to its
time and place, including its location in the Park.

Upcoming Events

  • Build-to-Rent Conference

    JW Marriott Phoenix Desert Ridge

    Register Now
  • Reimagining Sense of Place: Materiality, Spatial Form, and Connections to Nature

    Webinar

    Register for Free
  • Homes that Last: How Architects Are Designing a Resilient Future

    Webinar

    Register Now
All Events