Reva And David Logan Center For The Arts

Project Details

Project Name
Reva And David Logan Center For The Arts
Project Types
Education
Project Scope
New Construction
Shared By
katie_gerfen
Project Status
Built
Size
184,000 ft²

Project Description

2017 AIA Institute Honor Award Winner in Architecture

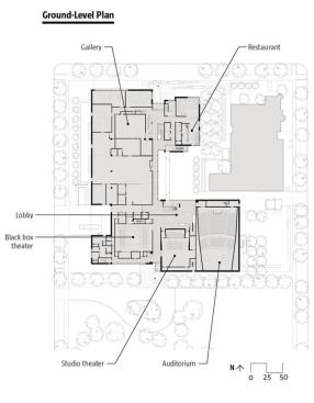
The New York–based partnership of Tod Williams, FAIA, and Billie Tsien, AIA, recently snagged the coveted commission for the Barack Obama Presidential Library in Chicago, and one need not look far for a prelude to that new work. The firm’s Reva and David Logan Center for the Arts, on the University of Chicago campus, a stone’s throw from the site of the future library, is a 184,000-square-foot cultural facility for the school’s visual arts, film, music, and theater programs that combines an auditorium, film production studios, an eatery, galleries, offices, and more, into a complex that’s divided between a warehouse-ish low-rise and a looming, half-glass and half-masonry tower.

The architects’ approach to the two-in-one typology is a nod to Chicago’s dual architectural traditions—bringing together the horizontality of Frank Lloyd Wright and the Prairie School with the skyscrapers of Louis Sullivan and Ludwig Mies van der Rohe. (Williams and Tsien have also noted that the raked skylights in the low-rise block recall old daylit factories, and that the tower echoes the muscular quiddity of Louis Kahn or late-career Marcel Breuer.)

But these intertwined resonances of some of the great masters are not merely reverence. They are part of a broader urban objective—to make the building at once present at the neighborhood scale, and still a landmark on the Chicago skyline, allowing the center to belong both to the university and its environs and to the city at large. A foretaste of things to come? We’ll have to wait and see.

Project Credits
Project: Reva and David Logan Center for the Arts, Chicago
Client/Owner: University of Chicago
Architect: Tod Williams Billie Tsien Architects | Partners, New York—Tod Williams, FAIA, Billie Tsien, AIA (partners-in-charge); Philip Ryan, Felix Ade, AIA, Johnny Cho, Azadeh Rashidi, Brian Abell, Aaron Fox, Evan Ripley, Archana Kushe, Forrest Frazier, Annika Bowker, Aaron Korntreger, Aurelie Paradiso (design team)
Associate Architect: Holabird & Root, Chicago
M/E/P Engineer: Ambrosino, DePinto & Schmieder
Structural Engineer: Severud Associates
Civil Engineer: David Mason Associates
Geotechnical Engineer: Ground Engineering Consultants
Landscape Architect: Hargreaves Associates
Lighting Design: Renfro Design Group
Acoustics and AV: Kirkegaard Associates
Theater Design: Schuler Shook
Construction Manager: Turner Construction
LEED Consultant: Steven Winter Associates
Curtainwall Consultant: Axis Group
Elevator Consultant: Van Deusen & Associates
Code Consultant: Jensen Hughes
Film Theater Consultant: Full Aperture Systems
Signage: Pentagram
Contractor for Café: Riis Borg Construction
Concrete Consultant: Reg Hough Associates
Auditorium LED Ornamental Lighting: Studio 1Thousand
Security: Sako & Associates
Industrial Hygiene/Ventilation: ACTS; David Gordon
Size: 184,000 square feet
Cost: Withheld

To see the rest of ARCHITECT's coverage of the 2017 AIA Institute Honor Awards, click here.

From the November, 2012 issue of ARCHITECT:

Tod Williams And Billie Tsien Speak With Lee Bey About Their First Project In Chicago, Which Combines The Fine And Performing Arts Departments At The University Of Chicago Into A Building That Pays Homage To Both The Skyscraper And The Plains.

What is the program of the Reva and David Logan Center for the Arts?
Billie Tsien, AIA: We took different people [from] different parts of the arts and put them all together in a tower, so that it would mix kids practicing the piano with kids putting on a play with kids dancing. And that would get a sort of synergy happening between both the faculty and the students. So it’s the tower of the arts.

Let’s talk a little bit about the form of the building from the exterior. As a guy from the Midwest, it reminds me, in a way, of a silo.
Tsien: That’s interesting because that’s one of the images we first used when we talked about the building. Tod talked about the vertical building as the silo and the horizontal building as the Plains. But of course the vertical building is a Chicago tradition, so we’re also referring to the city.

The exterior is comprised of what look like Roman bricks, which we see with the work of Wright and the Prairie School.
Tod Williams, FAIA: [We used] long bars of stone that are like horizontal bars and also bricklike, so we were definitely thinking about Frank Lloyd Wright when we made the building. And, as he did, we were thinking about the … sense of compression where the building is wedded to the ground.

Tsien: We wanted to relate to the limestone buildings of the University of Chicago’s Neo-Gothic campus. At the same time, we wanted to say [that] we’re on the other side of the [Midway] Plaisance [from the main campus]; we’re a new building. So we looked for a limestone that was not the traditional Indiana limestone. We wanted something much more variegated in its color. There are tones of orange and gray; it’s much warmer.

How much of a free hand, or lack thereof, did the university give you in the design of the building?
Tsien: This was done through a competition. Many times in competitions, the buildings themselves are not exactly built. I think the basis of our scheme remained intact. The departments had strong needs. So we needed to balance their requirements with the idea of a sense of wholeness.

Williams: The number of arts elements that are packed together in this tight base and tower are amazing. If you were to really belt out music … [in a music ensemble room], the spaces adjacent would not hear it. You could have, next door, a dance performance going on, and you wouldn’t feel it. But you could go out into the hallway and have these two groups come together. So it was a struggle to put all these things together and have it be as technically advanced as it is.

How much did the views of the city factor in to how you shaped this space?
Williams: A lot. If we’re standing in a space looking north and east, we get to see [Lake Michigan]. But if you go to the other side of the building you’ll also see that we have interesting views to the south, so we’re trying to address both the life of the north of Chicago and the life of the south of Chicago, and make it come together here in the building. The building looks very solid on the outside, but as you walk through, you’ll find that really every space has some dramatic window that connects you to the outdoors.

What freedoms did this site across the Midway Plaisance from the campus core afford you?
Tsien: It allows us to break free of a Neo-Gothic style. It also [lets us] look back to the campus, but to the south as well. There are two front doors: the door that opens on the Plaisance and the door [that] opens onto the South Side. The entrance to the south is also a drop-off, and it leads to the main lobby of the three major performance spaces. This is a public entrance, and those are probably the most public aspects of the building. This is a kind of gateway … a kind of [a] door opening.

Williams: It may not seem that way now, but the reality is that the future of Chicago is actually in the South Side. And the University of Chicago recognizes that, both for itself and for the whole community.

Upcoming Events

  • Design Smarter: Leveraging GIS, BIM, and Open Data for Better Site Selection & Collaboration

    Live Webinar

    Register for Free
  • Slate Reimagined: The Surprising Advantages of Slate Rainscreen Cladding

    Webinar

    Register Now
  • The State of Residential Design Today: Innovations and Insights from RADA-Winning Architects

    Webinar

    Register for Free
All Events