Residential Complex “Krestovsky’s Crystals”; block “Lazurite”

Project Details

Project Name
Residential Complex “Krestovsky’s Crystals”; block “Lazurite”
Location
Konstantinovskiy prospect 20, Krestovsky islandSt.PetersburgRussian Federation
Project Types
Project Scope
New Construction
Shared By
A.Len
Project Status
Built
Year Completed
2011
Size
1,752 ft²

Project Description

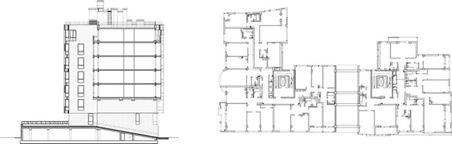
The two-section eight-story residential building has a polygonal form at the ground level, and it has U-shaped form starting with the first floor. There are offices and technical rooms at the street level of the house, domestic premises are situated from 2 to 7 floor. Building sides consist of the different-sized cubic contents which create complex “play” of surfaces. Balconies, loggias and also the terraces, which are located on the 7 floor, support this geometrical pattern of facades. The natural stone was used in the facing of external walls of the complex.

Upcoming Events

  • Build-to-Rent Conference

    JW Marriott Phoenix Desert Ridge

    Register Now
  • Reimagining Sense of Place: Materiality, Spatial Form, and Connections to Nature

    Webinar

    Register for Free
  • Homes that Last: How Architects Are Designing a Resilient Future

    Webinar

    Register Now
All Events