Renovation to a Maine Seaside Home

Project Details

Project Name
Renovation to a Maine Seaside Home
Location
Bar HarborME
Project Types
Project Scope
Renovation/Remodel
Shared By
dmadsen
Project Status
Built
Size
4,121 ft²

Project Description

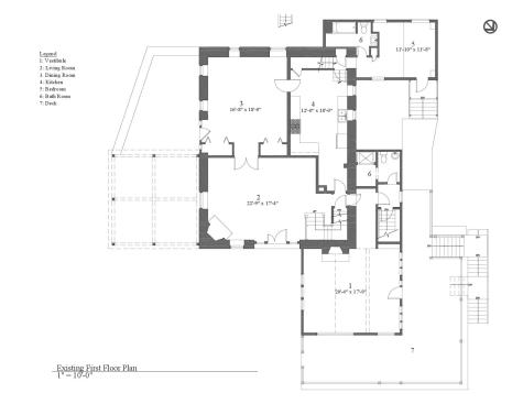
It was a challenge to transform this former bed and breakfast back to its glory as a family vacation home. The charming and eccentric late 1880’s summer cottage near Bar Harbor, Maine had suffered through inconsistent additions and interior remodeling projects. The original structure was part of a wave of second homes built on the coastal waters of Maine for an affluent Bostonian clientele. The existing footprint fell largely within a shoreline protection area, so enlargement was not an option, driving the program towards more of a restorative effort than previously considered by the owners.

While the home is perched right along the shoreline, the existing principal rooms lacked water views; trapped within the existing stone walls. A major portion of the work included removing many of the existing additions, foreign masses added over time. A reworking of the interior exposed the existing structure, creating a blank canvas for the new work.

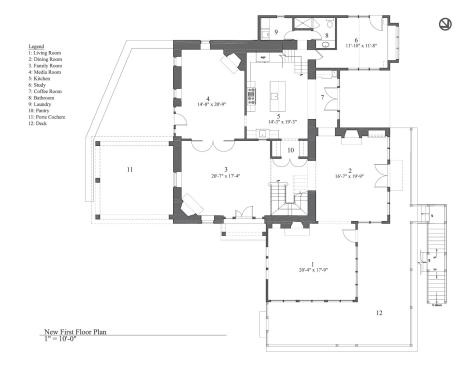
A sweep of new glazed entertaining rooms was added outside the existing two foot thick stone walls. The materials used for the additions were sympathetic, but upon closer inspection, clearly distinguished as newer in execution. New arches were cut through the old stone walls. Once exterior, now interior, these walls invite passage to the waterside and open up garden views from the kitchen and entry areas. As is fitting in any waterfront home, the living room, dining room and bar now enjoy immediate water and garden views. The reconfigured upper floors contain four new bedroom suites, each of which enjoys the views and capitalizes on the cathedral ceiling possibilities afforded by the roof and swooped dormers.

The formerly inward looking conglomerate of additions is now a cohesive family cottage that maximizes light and views. The cottage, the heart of family life, once again sits proudly overlooking the water.

Upcoming Events

  • Design Smarter: Leveraging GIS, BIM, and Open Data for Better Site Selection & Collaboration

    Live Webinar

    Register for Free
  • Slate Reimagined: The Surprising Advantages of Slate Rainscreen Cladding

    Webinar

    Register Now
  • The State of Residential Design Today: Innovations and Insights from RADA-Winning Architects

    Webinar

    Register for Free
All Events