Reno Homeless Shelter

Project Details

Project Name
Reno Homeless Shelter
Location
RenoNV
Project Types
Planning
Shared By
dmadsen
Project Status
Built
Size
4,608 ft²

Project Description

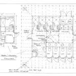
The objective was to design economical structures that could serve as temporary housing for some of the homeless residents at the existing shelter in downtown Reno. The housing would be erected on deck structures using pre-cut structural insulated panels (SIP’s) that are staggered to allow for a semi-private entry porch at each housing unit. Shared walls reduce energy requirements and provide for an egress window location at the staggered rear walls for additional light and ventilation.

The project outline called for 10 Family Units 12’x12′, 10 Double Units 12’x8′, and 20 Single Units 8’x8′ in size, plus a minimum of 5 toilets and 5 showers including 1 handicap toilet/shower. The proposed design satisfied the requirements with the Family Units enclosed by a privacy fence for more of a residential setting and to control access for the protection of any children living there, the Double and Single Units located along a walking path to encourage neighborly interaction, a Family Area Bath/Laundry facility with 4 toilets, 3 showers, laundry, and the larger Bath/Laundry facility providing 5 toilets and 5 showers including a handicap bathroom, and laundry. The walking paths allow for access to the Community Garden at the North end of the site.

The design purposely avoids the appearance of standard, gable-roofed houses – these are not intended as permanent “homes” but would be an improvement over sleeping on the floor of the existing shelter. Some of the obstacles at the site are an existing railroad trench behind a concrete wall along the South property line that would have daily train traffic and a ballpark across the trench that would create noise issues during the summer. The residents would rely on the existing shelter facility across the parking lot for meals, medical and security needs.

Upcoming Events

  • Design Smarter: Leveraging GIS, BIM, and Open Data for Better Site Selection & Collaboration

    Live Webinar

    Register for Free
  • Slate Reimagined: The Surprising Advantages of Slate Rainscreen Cladding

    Webinar

    Register Now
  • The State of Residential Design Today: Innovations and Insights from RADA-Winning Architects

    Webinar

    Register for Free
All Events