Regietów Chyża

Project Details

Project Name
Regietów Chyża
Architect
WOJR
Project Types
Single Family
Project Scope
New Construction
Shared By
Andrea Timpano
Project Status
On the Boards/In Progress
Size
753 ft²

Project Description

This project was named a Citation winner in the 70th Annual Progressive Architecture Awards, and was featured in the March 2023 issue of ARCHITECT.

“What I like about this home design is its Zen-like simplicity and how it sits so lightly on the landscape. A poignant reminder of what we don’t need.” —Juror Carrie Byles, FAIA

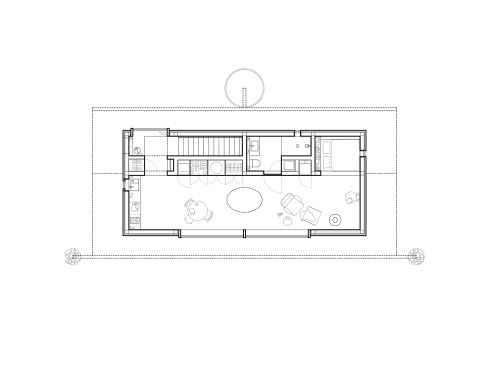
For the regietów chyża house in poland’s mountainous southeast, the Cambridge, Mass., office of WOJR channels all the romance and mystery of the Eastern European backcountry, producing a charming rural escape enlivened with just a hint of dark magic. Hoisted atop a series of concrete slabs, a conventional timber balloon-frame structure accommodates a simple, Existenzminimum-style program of kitchen, sitting room, bed chamber, workspaces, and bathroom, all packed with considerable sectional ingenuity into the modest wood-clad envelope. Over it all spreads a broad, steeply pitched gabled roof, cut with an ocular skylight set like a watchful eye over the landscape. Equally curious apertures appear elsewhere in the façade, including irregular cutouts in the base and a wide living-room window overlooking the surrounding wilderness.

As imagined by the architects, the house’s processional drama would see the client approach it through the woodlands, ascending through its sheltered undercarriage to the main story, their arrival stirring the sleeping building to life. That narrative, combined with the design’s overall witchy-ness, gives WOJR’s project a decidedly eerie, fairy-tale feeling—recalling in particular the Polish myth of the Baba Jaga, the old sorceress who can both cure and curse, waiting for visitors in her forest hut set on chicken legs.

PROJECT CREDITS
Project: Regietów Chyża, Regietów, Poland.
Architect: WOJR, Cambridge, Mass. William O’Brien Jr.; Adam Murfield; Justin Gallagher; John David Todd; Grace McEniry
Visualization: D-Render

Upcoming Events

  • Design Smarter: Leveraging GIS, BIM, and Open Data for Better Site Selection & Collaboration

    Live Webinar

    Register for Free
  • Slate Reimagined: The Surprising Advantages of Slate Rainscreen Cladding

    Webinar

    Register Now
  • The State of Residential Design Today: Innovations and Insights from RADA-Winning Architects

    Webinar

    Register for Free
All Events