Reeds Spring Middle School

Project Details

Project Name
Reeds Spring Middle School
Location
Reeds SpringMO
Project Types
Education
Project Scope
New Construction
Shared By
katie_gerfen
Project Status
Built
Size
78,000 ft²

Project Description

“A clear concept organized around elements found in the Ozark landscape led to beautiful execution. It’s buried in a hill, yet full of daylight.” —Jury statement

Dake Wells Architecture’s design for the Reeds Spring Middle School in southern Missouri features, in a sense, an interior in an interior: While students are sheltered by the simple geometrical envelope of the building, the building itself is partially sheltered within a hillside, slotted lengthwise into one of the rolling bluffs of the western Ozarks.

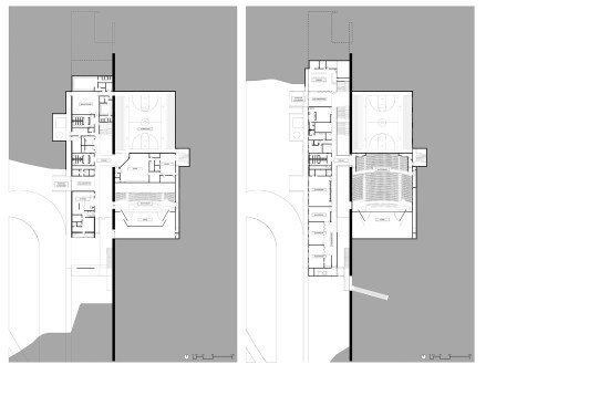
Semi-buried architecture is nothing new—witness examples as diverse as the ancient cave villages of Turkey and Philip Johnson’s art gallery at the Glass House complex—but in the contemporary institutional context, such structures run into persistent problems of functionality as well as atmospherics—bunkers being rather undesirable places to work and learn. For Reeds Spring, the team at Springfield, Mo.–based Dake Wells struck on an obvious but effective solution: cleaving a narrow space between the building and the verdant bank, and using the gap as a light well that runs clear through the interior—a luminous shaft ensuring that no room is left feeling like a dank basement.

Softening the environment still further is a wall that runs the length of the central skylit atrium: Composed of differing depths of buff-toned bricks, the textured surface catches the light and brightens the communal space. The wall is complemented on the opposite side of the interior hallways by a double-height wooden screen that also acts as a railing for the upper-level gallery. The light-filled concourse does double duty, as the designers have embedded seating (also in wood) into a staircase that ascends to make an active social space—a bonus amenity for students and teachers alike.

Project Credits
Project: Reeds Spring Middle School, Reeds Spring, Mo.
Client: Reeds Spring R-IV School District
Architect: Dake Wells Architecture, Springfield, Mo. . Brandon Dake, AIA (principal); Matt Thornton, AIA (project manager); Kirk Dillon, Assoc. AIA (project associate)
General Contractor: DeWitt & Associates
Structural Engineer: Mettemeyer Engineering
M/E/P Engineer: Malicoat-Winslow Engineers
Civil Engineer: White River Engineering
Energy Consultant: Group14 Engineering
Acoustics: Bruce Moore, AIA
Traffic Consultant: CJW Transportation Consultants
Size: 78,000 square feet

FROM THE AIA:

Taking advantage of the site’s dramatic topography, this new middle school places the two largest programmatic spaces below grade, providing energy efficiency and storm resiliency for nearly 400 students and teachers. A cascading atrium is the heart of the school, flooded with light and activity, connecting collaborative teaching zones and flexible learning environments. A wood screen references the nearby woods while providing added safety and warmth to the building interior.

FROM THE 2018 AIA INSTITUTE HONOR AWARDS FOR INTERIOR ARCHITECTURE JURY:

This theme of preserving the environment permeated the design process. Such a clear concept organized the program around elements found in the Ozark landscape led to beautiful execution. Buried in a hill, yet bursting full of daylight is praiseworthy.

FROM THE ARCHITECTS:

The proposed Reeds Spring Middle School takes best advantage of a steeply sloped and heavily wooded site to combine student learning, community engagement and the natural environment into its K-12 campus. The design solution accommodates the district’s desire for state of the art technology integration, collaborative learning and storm safety as the highest priorities for its students.

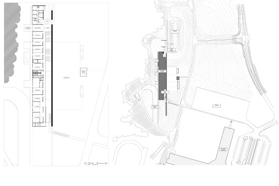
The result of a collaborative planning exercise with the district, a new semi-circular ring road will connect existing district facilities and provide access to new ones as well, including this new middle school. The strong geometry of the road responds to the need for clear organization and site topography, minimizing land disturbance.

In order to preserve the natural environment, the solution eschews the obvious choice to build on the flattest part of the site. This approach reserves precious buildable sites for future athletic fields and buildings while providing storm safety for the entire campus. The choice of site makes use of a large existing surface parking area, minimizing the need for additional parking. Responding to the rugged terrain and natural site conditions, the building is organized into four key elements: ‘the school box,’ ‘the stream,’ ‘the bluff,’ and ‘the den.’

The school box contains all of the tools, both traditional and cutting edge, required for learning. It is positioned along the slope with direct views to the woods from every classroom and access to an outdoor classroom from each level as an extension of the atrium through collaborative learning zones. Marker boards, wireless access points, and convenient charging stations for devices are in each zone and distributed throughout the wing. Counter spaces, soft seating and operable partitions encourage the notion that learning happens everywhere. Team teaching is also supported in these collaborative zones for multi-class gatherings and group projects. At its uppermost level, administrative offices located at the main entrance provide added safety and security for students. The large central atrium follows the sectional profile of the existing drainage topography, collecting and accommodating the flow of people like a stream. The day-lit space provides area for informal learning and social time. An entry court at the lowest level provides a cover for boarding school buses as well as public space for after hours events.

A massive masonry wall retains earth and provides the resilient construction needed for safety, much like the rock bluffs abundant in the Ozarks. Two large gathering spaces – a competition gym and a 1,000 seat auditorium – are nestled into an existing hollow like wolf dens with a turf green roof providing storm safety for the campus. The result is a scheme that celebrates the rugged beauty of the site, with large gathering spaces below grade providing storm safety, and classrooms among the trees.

FROM THE AIA:

Taking advantage of the site’s dramatic topography, this new middle school places the two largest programmatic spaces below grade, providing energy efficiency and storm resiliency for nearly 400 students and teachers. A cascading atrium is the heart of the school, flooded with light and activity, connecting collaborative teaching zones and flexible learning environments. A wood screen references the nearby woods while providing added safety and warmth to the building interior.

Upcoming Events

  • Design Smarter: Leveraging GIS, BIM, and Open Data for Better Site Selection & Collaboration

    Live Webinar

    Register for Free
  • Slate Reimagined: The Surprising Advantages of Slate Rainscreen Cladding

    Webinar

    Register Now
  • The State of Residential Design Today: Innovations and Insights from RADA-Winning Architects

    Webinar

    Register for Free
All Events