Reduction Residence

Project Details

Project Name
Reduction Residence
Location
PittsburghPA
Project Types
Single Family
Shared By
Madeleine D’Angelo
Project Status
Built
Size
2,100 ft²

Project Description

This project was selected as a winner in the 2019 Residential Architect Design Awards
Renovation (residential remodeling and additions) / Adaptive Reuse, Award

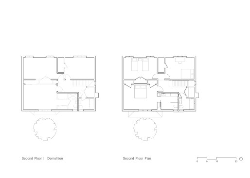
This 2,100-square-foot postwar brick residence in Pittsburgh was renovated by the local office of Bohlin Cywinski Jackson for a young design-savvy couple with three children. It was dubbed the Reduction Residence in recognition of the architect’s surgical and minimalist design interventions—they retained the house’s basic organization of an entry stair and living room across the front of the ground floor with dining and kitchen behind, and a master suite across the front of the second floor with two smaller bedrooms in back.

Cutting operable skylights along the roof ridge increased natural ventilation while bringing daylight into the center of the house through dramatic positioning above the master bedroom and the staircase. The light-stained pine stairs are bathed in natural light and surrounded by white-painted slat-screen walls that downstairs visually connect the foyer and dining room. Second-floor ceilings were raised to provide an enlarged sense of space and enhance ventilation, exposing the existing rafters, which were enhanced with natural finishes and punctuate the spaces. Existing door, window, and wall trim was removed, leaving sharp, plaster-framed openings that enhance shadows with their clear-cut edges. Continuous new pine floors tie the first-level spaces together while the second-level wood floors were salvaged and painted white to camouflage previous wear and tear while providing spatial continuity.

The “reductions” that give the home its name transform the layout into a light and bright series of interconnected spaces. The results are minimal in expression and organization, yet dramatically reframe the traditional house’s modest aesthetic.

Project Credits
Location: Pittsburgh
Client: Withheld
Architect: Bohlin Cywinski Jackson, Wilkes-Barre, Pa. . Kent Suhrbier, AIA (principal); Bill James (project manager)
Interior Designer: Bohlin Cywinski Jackson
General Contractor: Cummings Construction
Size: 2,100 square feet
Cost: Withheld

Materials and Sources
Bathroom Fixtures: Cocoon
Countertops: Silestone
Fabrics/Finishes: Porcelanosa (tile and solid surface)
Flooring: Dinesen (Pine flooring)
Lighting: WAC Lighting
Paints/Finishes: Portola (Limewash, Roman Clay paints)
Roofing: Copper
Windows/Doors: Kolbe (VistaLuxe)

FROM THE ARCHITECTS:

This residential up-cycle employs a subtractive design process that emphasizes the elemental quality of space and light over excessive details. A close collaboration with engaged and design-savvy clients, the modest post-war brick house, located in a beloved Pittsburgh borough, lacked the movement, light, and clarity that the owners desired. The process: a simple removal, refinish, and reduction, distills the space to its essence and provides the young couple and their three children a thoughtful and distinctive home. The overall organization of the home was re-used, while the spaces were opened up through the removal of all extraneous interior walls. The existing kitchen, new bathrooms, and consolidated storage spaces are condensed into compact service walls to create the clean living spaces. The desire for abundant natural daylight within the existing boxy structure translated into the introduction of strategic “voids” along the roof ridge, down the stair, and across the living room. These cuts through the attic and exterior reveal the natural structures of the home, and provide dramatic indirect light, while managing privacy. New casement windows, improved exterior and attic insulation increase the passive efficiency of the structure, while operable skylights at the ridge cuts draw cool air up through the new lightwells to naturally ventilate the home. The low ceilings at the second floor were strategically raised to the top of the existing attic framing, providing both height and the organic texture of salvaged-in-place rafters. All existing trim at doors, windows, and walls were removed to leave a natural palette of white painted plaster, clay coated plaster, denizen floors, ceramic floors, and wood rafters. On the second floor, existing damaged wood floors were salvaged and painted in keeping with the neutral composition. The curated furnishings are authentic and natural, providing the desired wabi-sabi that subtly activates the light-filled rooms. The glass bay at the opened living room creates a deep inside/outside window seat under the existing tree canopy. The reconfigured stair opens up the remaining interior walls to form a framed entry view through the dining space. This modified space – the central element where people and daylight reflect and flow through the home – is a modern and restrained update to this traditional brick home.

Project Credits:
Project: Reduction Residence
Architect: Bohlin Cywinski Jackson, Wilkes-Barre, Pa. . Kent Suhrbier, AIA (principal); Bill James (project manager)
Interior Designer: Bohlin Cywinski Jackson
General Contractor: Cummings Construction

Upcoming Events

  • Design Smarter: Leveraging GIS, BIM, and Open Data for Better Site Selection & Collaboration

    Live Webinar

    Register for Free
  • Slate Reimagined: The Surprising Advantages of Slate Rainscreen Cladding

    Webinar

    Register Now
  • The State of Residential Design Today: Innovations and Insights from RADA-Winning Architects

    Webinar

    Register for Free
All Events