Red Barn

Project Details

Project Name
Red Barn
Location
WestportCT
Project Types
Single Family
Project Status
Built
Year Completed
2015
Size
2,500 ft²

Project Description

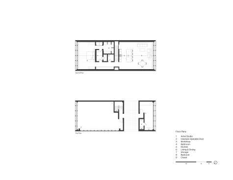
Located on a coastal Connecticut estate, Red Barn is a contemporary Live/Work prototype, containing program for an artist on the first floor (a studio and workspace) and modern living accommodations on the second floor (a bedroom, bathroom, living and dining areas), totaling 2,500 SF. In stark counterpoint to the traditionalism of the estate, the building houses its functions in minimalist, graphic efficiency as it reinterprets a common New England building form. Particular attention was paid to the development of the rainscreen façade (a Swiss composite system), integration into the landscape, and framing views to Long Island Sound.

Upcoming Events

  • Design Smarter: Leveraging GIS, BIM, and Open Data for Better Site Selection & Collaboration

    Live Webinar

    Register for Free
  • Slate Reimagined: The Surprising Advantages of Slate Rainscreen Cladding

    Webinar

    Register Now
  • The State of Residential Design Today: Innovations and Insights from RADA-Winning Architects

    Webinar

    Register for Free
All Events