Record House Revisited

Project Details

Project Name
Record House Revisited
Project Types
Project Scope
Preservation/Restoration
Shared By
babaiah
Project Status
Built
Size
3,000 ft²

Project Description

2011 RADA
Restoration/Preservation / Grand

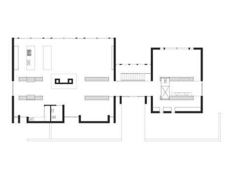
Bringing a notable 1969 house up to today’s standards can be a delicate maneuver, but this one succeeds on the strength of a central idea: the elegant mixing of materials that both define and weave together the new floor plan.

“Going into this project, we had no idea that what we ended up with was possible,” says David Jameson, FAIA, of the house designed by Charles H. Richter. While the exterior was beautifully detailed, both living pavilions contained a clutter of rooms that defied the structure’s simplicity. Liberation came from the existing truss roof system, which allowed Jameson to make a clean sweep of the interior.

Two dramatic moves opened up the floor plan while also respecting the building’s character. One was to expose the skylight ring around the chimney so that it reads as an obelisk, anchoring the entire composition. The other was the use of bold contrasts to organize space. Flat-sawn walnut floors and quarter-sawn walnut casework wrap the living areas. Cabinetry and countertops are sanded Corian. “We thought, let’s find this voiceless casework that relates to the white brick and plaster ceilings,” Jameson says. “Corian has the luminosity of an eggshell juxtaposed with the brick. Those materials were a way of repositioning the house as organic and part of woods, and also tectonic and driven by the architecture.” Commented a judge: “It’s spectacular the way the different materials come together.”

Upcoming Events

  • Design Smarter: Leveraging GIS, BIM, and Open Data for Better Site Selection & Collaboration

    Live Webinar

    Register for Free
  • Slate Reimagined: The Surprising Advantages of Slate Rainscreen Cladding

    Webinar

    Register Now
  • The State of Residential Design Today: Innovations and Insights from RADA-Winning Architects

    Webinar

    Register for Free
All Events