RCCC Charis Chapel, Rutgers Community Christian Church

Project Details

Project Name
RCCC Charis Chapel, Rutgers Community Christian Church
Location
SomersetNJ
Project Types
Religious
Project Scope
New Construction
Shared By
library
Project Status
Built
Year Completed
2012
Style
Modern
Size
36,600 ft²
Room or Space
Architectural Detail

Project Description

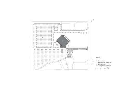
A 7.9 acre site was acquired adjacent to the existing church property. A simple master plan was drawn up that showed the new church building would accommodate approximately 1,400 seats, a recreation center, and a re-evaluation/re-plan of the total parking needs.

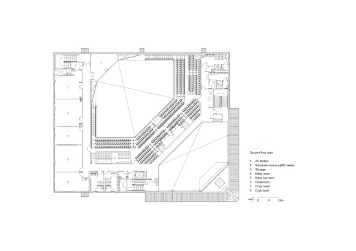
The design employed a square rotated 45° to achieve the most efficient and most intimate seating arrangement, while maintaining the optimal circulation in relation to the foyer and corridor connecting the supporting space and classrooms. An uplifted slant roof was designed to maximize height and allow natural daylight to illuminate the center of sanctuary, signifying a “vision from heaven,” and to further highlight the otherwise simple and humble features of the buildings from the main passing road.

A wire caged stipple raised in front of the entrance foyer represents a very much simplified “campanile.” Built-in LED lights on the two masonry side walls serve as reminders to the congregation that Christians must remember their mission as “those who are wise will shine like the brightness of heavens, and those who lead many to righteousness, like the stars for ever and ever.” – Daniel 12:3

Overall, the design uses a subdued humble massing, with restrained gesture in design to place emphasis on being more environmentally friendly, good neighbors, and a graceful addition to this semi-rural site.

Upcoming Events

  • Design Smarter: Leveraging GIS, BIM, and Open Data for Better Site Selection & Collaboration

    Live Webinar

    Register for Free
  • Slate Reimagined: The Surprising Advantages of Slate Rainscreen Cladding

    Webinar

    Register Now
  • The State of Residential Design Today: Innovations and Insights from RADA-Winning Architects

    Webinar

    Register for Free
All Events