RareSweets

Project Details

Project Name
RareSweets
Location
CityCenterDCWASHINGTONDC20001
Project Types
Shared By
CORE DC
Project Status
Built
Year Completed
2014
Style
Modern
Size
1,200 ft²
Team

Project Description

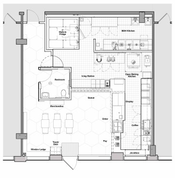
CORE created a light, modern bakery for pastry chef Meredith Thomason. The design is inspired by Thomason’s menu of heritage recipe desserts. Located at 963 Palmer Alley in CityCenterDC, the 1,200 SF RareSweets is the only bakery in the development.

Like Tomason’s culinary creations, the RareSweets design reinterprets heritage baking in a fun and modern way. For example, a wooden apron – inspired by a design motif found in old cookbooks and pie tins – outlines the baking area. Larger, horizontally-stacked subway tiles face the walls instead of traditional subway tiles. Supersized hexagonal floor tiles replace the traditionally small-tile treatment. Butcher block and Mink marble countertops replace the expected Carrera marble. And glass cake domes become light fixtures.

As RareSweets customers queue in front of the icing station they will appreciate the comforting design palette that mixes white, grey and honey-stained pine and ash tones with the bakery’s bright-yellow brand color.

Upcoming Events

  • Slate Reimagined: The Surprising Advantages of Slate Rainscreen Cladding

    Webinar

    Register Now
  • The State of Residential Design Today: Innovations and Insights from RADA-Winning Architects

    Webinar

    Register for Free
  • Specifying Smarter with Copper-Clad Aluminum (CCA) Metal-Clad Cable

    Webinar

    Register for Free
All Events