Rappahannock Bend

Project Details

Project Name
Rappahannock Bend
Project Types
Guest House
Project Scope
Renovation/Remodel
Shared By
Mahesh Rajanala
Project Status
Built
Room or Space
Outdoor

Project Description

2003 RADA
Renovation /Merit

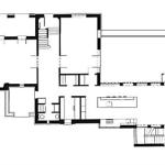
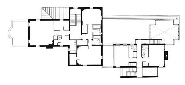
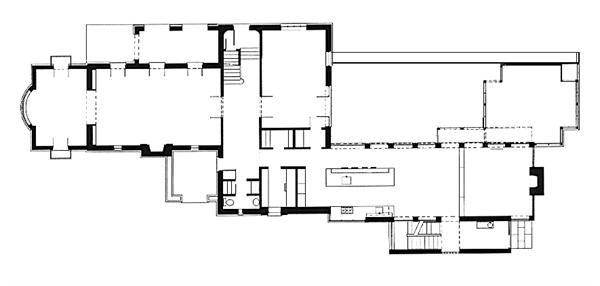
The stunning guest wing that Mark McInturff, FAIA, added to a 1930s home in rural Virginia incorporates a raft of traditional elements from the American South. He chose white-painted brick for the walls “because it’s a material I love and is appropriately Southern.” He then designed a contemporary version of the classic Southern screened porch, but drew it two stories tall and added louvers reminiscent of Savannah and Charleston: “They were among the last elements to go in, but they are the details that give the renovation much of its character.”

Architecturally, the original house had a very strong enfilade, which McInturff extended with a new dining area and courtyard, treated here as an outdoor room.

Judges appreciated the “fresh look” and loftlike spaces created by this addition. They also praised the way a new kitchen functions as living area within a “fluid” floor plan.

Upcoming Events

  • Future Place

    Irving, TX

    Register Now
  • Archtober Festival: Shared Spaces

    New York City, NY

    Register Now
  • Snag early-bird pricing to Multifamily Executive Conference

    Newport Beach, CA

    Register Now
All Events