Ranch Style Redux

Project Details

Project Name
Ranch Style Redux
Location
AtlantaGA
Project Types
Single Family
Project Status
Built
Year Completed
2014
Size
2,240 ft²

Project Description

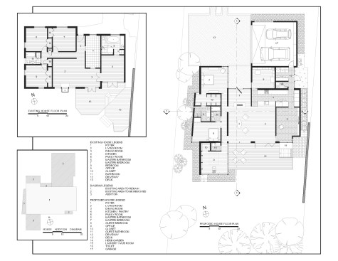
The mid-century explosion of ranch style homes across the country and the style’s subsequent decline in popularity has left Atlanta with a large homogenous stock vulnerable to tear downs, MacMansion-ing, radical tampering and other typical unfortunate expediencies. Rapid urbanizing growth is now surrounding this home’s formerly suburban neighborhood, just outside of downtown Atlanta. As urbanization continues and interest in mid-century design increases, the older ranch homes with large lots and mature landscaping become more and more desirable. After touring this long-time owner’s home, property and neighborhood we recommended retaining the existing character and structure. Our final solution for renovation and additions: (1) Satisfies the Owners’ desires to bring order to a chaotic plan and open the home to the beauty of their wooded lot. (2) Respects the style of the house and contributes a readily visible example to the existing neighborhood that additions and renovations to ranch style houses can be adapted to current lifestyles while remaining true to their original character. (3) Fulfills the Owner’s request for a sustainable energy efficient home The site’s most notable feature is an unusually deep lot sloping down to a small branch, populated by mature trees with a large beech the most outstanding example. Their primary request was extensive glass on the back of the house coupled with a deck off of the living areas facing south into the stunning site. Our solution reorganizes the floor plan to their intended lifestyle, opens view corridors through the house in order to visually expand the size of the rooms and successfully extend them into the landscape. Gardening is a favorite occupation of both owners and a large deck with room for outdoor dining and container plantings stepping down to the backyard was essential, as was a potting shed and storage located below the deck. Sustainable features include: • Renovation of an existing house. • Geothermal heat pumps and an energy recovery ventilator installed in the crawl space. Vertical geothermal wells are installed below the new driveway for heating, cooling and hot water. • Oak flooring and brick veneer were salvaged and re-used • High albedo standing seam metal roofing • EarthCraft Certification • Low or no V.O.C. materials and finishes throughout • Waste landfill diversion program • True Stucco • Thermally broken aluminum storefront, doors and windows with low-E coatings and solar heat gain coefficient exceeding energy code requirements. • Broad eaves and trellises shade glazed areas of the house in summer and allow winter sun to penetrate and assist in heating. • Spray wall and roof rafter insulation • Crawl space was insulated, de-vented and a vapor barrier, radon venting and insulated ducts installed.

Upcoming Events

  • Build-to-Rent Conference

    JW Marriott Phoenix Desert Ridge

    Register Now
  • Reimagining Sense of Place: Materiality, Spatial Form, and Connections to Nature

    Webinar

    Register for Free
  • Homes that Last: How Architects Are Designing a Resilient Future

    Webinar

    Register Now
All Events