Rainier Beach Clinic

Project Details

Project Name
Rainier Beach Clinic
Location
SeattleWA
Architect
Mahlum Architects
Project Types
Healthcare
Project Scope
New Construction
Shared By
Madeleine D’Angelo
Project Status
Built
Year Completed
2019
Size
12,073 ft²

Project Description

This project was a winner in the 2021 AIA COTE Top Ten Awards.

FROM AIA:

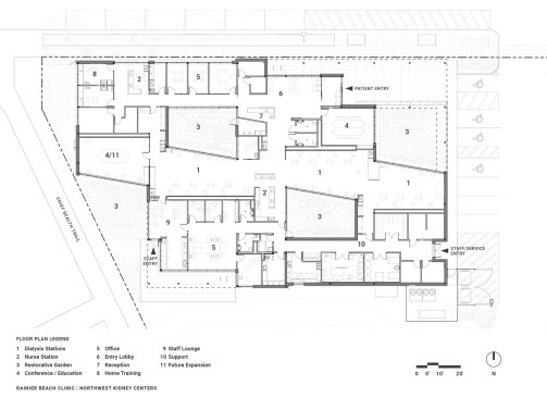
Some 500,000 Americans are living with Chronic Kidney Disease and spend 16 hours each week undergoing dialysis in life-sustaining outpatient clinics which can feel chaotic, crowded, and institutional. This dehumanizing experience has been likened to flying from Seattle to Chicago three times weekly in the middle seat of coach. Seeking to revolutionize dialysis care with a patient-centric alternative, the team hypothesized that direct views to nature from patient care areas would increase participation with treatment regimens and improve health outcomes resulting in decreased morbidity and mortality rates.

To create patient care areas that position patients with direct views to nature, rigorous plan studies and full-scale mock-ups were conducted to reinvent the clinic environment while maintaining sightlines and workflows essential to clinical safety. The courtyards that punctuate the clinic feature biophilic design strategies, such as biodiverse, seasonal plantings that lower stress and bird habitats within pollinatorfriendly plantings that encourage distraction therapy for pain management. The design of spaces across the project also leverages research in biophilic design and environmental psychology, balancing refuge for patients with dynamic views to the layered courtyards and prospect to the community beyond. Warm, welcoming materials are illuminated with natural daylight and dappled light patterns from custom perforated screens.

These biophilic design strategies woven throughout the clinic create an immersive and restorative environment that encourage patients to comply with their treatment and be at ease when dialyzing. Keeping nature at the core of the design also resulted in a reduced environmental footprint, realizing significant reductions in water usage, operational carbon, and embodied carbon while actively working to restore local ecosystems. The Rainier Beach Clinic has been open for over a year and is beloved by staff and patients for bringing this restorative and innovative care directly to the community which it serves.

Upcoming Events

  • Build-to-Rent Conference

    JW Marriott Phoenix Desert Ridge

    Register Now
  • Reimagining Sense of Place: Materiality, Spatial Form, and Connections to Nature

    Webinar

    Register for Free
  • Homes that Last: How Architects Are Designing a Resilient Future

    Webinar

    Register Now
All Events