Racine Art Museum

Project Details

Project Name
Racine Art Museum
Project Types
Cultural
Project Scope
Renovation/Remodel
Shared By
BTL
Project Status
Built
Year Completed
2003
Size
46,330 ft²

Project Description

FROM THE ARCHITECTS:

When we undertook the design of the museum in Racine, it was with a thorough understanding
of the type of art that would occupy it, the environment required for the art, and the knowledge that our design would need to be a pivotal project in revitalizing a downtown community. Our work involved the complete programming and design for the museum, as well as the first exhibitions.

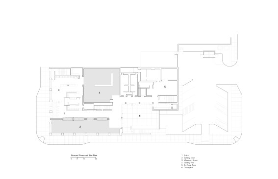
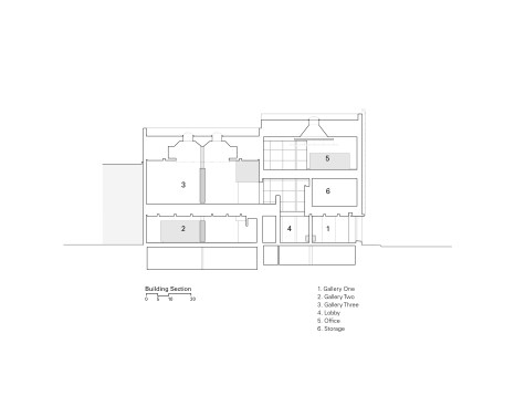
The project is a complete renovation of a composite of several buildings and structures spanning over a century. The design for the new museum redefines the existing structures with contemporary materials and a new spatial composition. The facade is wrapped in translucent acrylic panels separated from the exterior surface, allowing natural light to subtly illuminate the surface of the building during the day, while lighting at the top of the facade causes the building to glow in the evening. The iridescence of the acrylic panels by day and their lantern-like glow by night parallel the qualities of light and movement inside the museum.

Since opening in the spring of 2003 the museum has become one of the top-ten cultural attractions in Wisconsin, exceeding all museum-board criteria. It has received international press attention and four design awards from the AIA – Chicago, including the Chapter’s first Sustainable Design Award.

For more information, please visit http://www.brininstool-lynch.com/public/racine-art-museum

Upcoming Events

  • Design Smarter: Leveraging GIS, BIM, and Open Data for Better Site Selection & Collaboration

    Live Webinar

    Register for Free
  • Slate Reimagined: The Surprising Advantages of Slate Rainscreen Cladding

    Webinar

    Register Now
  • The State of Residential Design Today: Innovations and Insights from RADA-Winning Architects

    Webinar

    Register for Free
All Events