Pterodactyl

Project Details

Project Name
Pterodactyl
Project Types
Shared By
Sara Johnson
Project Status
Built
Size
16,663 ft²

Project Description

Text by Ian Volner

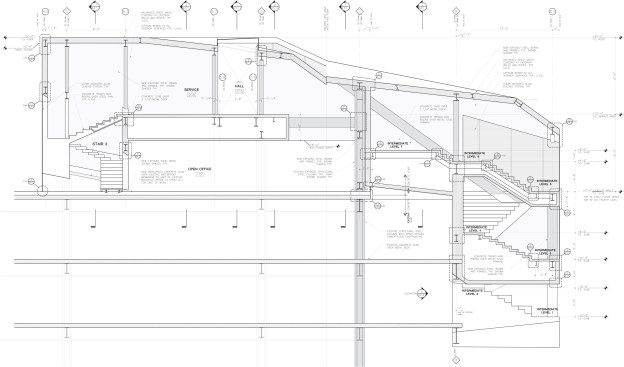
For nearly 30 years, Eric Owen Moss, FAIA, has been building not just a portfolio of buildings, but a whole city-within-a-city: the Hayden Tract in Culver City, Calif., where he and clients Frederick and Laurie Samitaur Smith have rolled out more than 20 projects to date, many of them office spaces occupied by tech firms and startups. As visually astonishing as many of these buildings—such as the Samitaur Tower, Stealth, Slash and Backslash, the Cactus Tower, and the Waffle—are, Pterodactyl, completed in 2015, still manages to stand out.

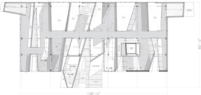
Perched atop a lower-level parking structure, the building is a jumble of fractured boxes that jut out at diverse angles, like a child’s origami paper game in process. Inside, the building actually has a conventionally orthogonal first floor, while the angled roofs on the upper levels afford a variety of differently configured spaces, including quiet corners and annexes for private meetings. In a neighborhood of mostly low- and mid-rise structures, the lofted upper stories are favored for their cool breezes and panoramic views across the long, flat expanse of central Los Angeles. An exemplar of Moss’ singular brand of urban poetics, Pterodactyl perfectly demonstrates the way his buildings in the Hayden Tract reconfigure their post-industrial environment, creating a new order even in the act of disruption. Coupled with his longtime association with the program at the Southern California Institute of Architecture (of which he is a co-founder and the former dean), Moss’ living experiment in Culver City confirms his status as perhaps the most essential, and the most authentic, of the West Coast’s masters of contemporary design.

This article appeared in the May 2016 issue of ARCHITECT magazine.


Interview by Aaron Betsky (May 18, 2015)

For decades, your conquest of the Hayden Tract in Culver City has been happening in pieces. Is Pterodactyl—a rooftop addition—the final piece?

Eric Owen Moss, FAIA: Like a city, the Hayden Tract projects didn’t really have a beginning or middle, and don’t really have an end. There are several other projects underway or planned in the area.

It was done, initially, in a very piecemeal way. Pterodactyl creates a sense of unity in five pieces, though it is deceptive. You enter under the Stealth (2001) and there are buildings called Slash and Backslash (1999), the Umbrella (1999), and then this one, which is really just a garage, built in 2001, 2002, with the intention of finishing it later. Pterodactyl was the most difficult: It’s the most technically complicated, and we had to wait for the rents to rise enough for it to make sense from a development standpoint.

This is the first area along the Hayden Tract that feels like you are creating a campus with exterior relationships between buildings.
It’s not Harvard Yard. It’s a little bit rougher. But I was in the Pterodactyl at 9:00 on a Friday night, and the place was packed. The tenant is a media company, and there were men and women with their children, dogs, there’s a bar with beer on tap, ping-pong, and they’re going like hell. They were working on a water conservation advertising campaign with all of these so-called Millennials piled into every nook and cranny of the place, and it’s terrific.

For years, the discussion about Culver City has been: “You invent it, it’s nowhere, nobody cares.” But over time, people started to understand it as a venue for media, advertising, the arts. There’s a sense here that creativity is more important than pushing paper, and all of that integrates with the architecture. The workplace begins to relate the different components to each other across the outdoor space—a piazza if you don’t want to call it a campus.

Workplaces have changed radically. Creativity becomes integrated with the architecture. You’ve been doing that for a long time, but have you made it more visible here?
I think what’s appealing for me is the evolution of the workplace—it has to do with technology, the size of spaces that people need, and the fact that they move around. In Pterodactyl, the ground floor is pretty much an open plan. The second is broken down into nine “boxes” that are more privatized and have their own personalities. There’s another piece, which is harder to read in the drawings but very readily understood when you’re in the building itself, which is a bridge that allows you to walk the length of the building.

I think a building like that lends itself to a different sociology―it works. It seems odd that we would be involved in a discussion about how something works. It’s considered banal and prosaic. But actually, it’s very appealing to go in there and to see it. I think the configuration of the building facilitates the energy and enthusiasm of the people who inhabit it.

Speaking of banality, in some ways this is a conventional composition, with a forecourt, an entrance emphasized by symmetrical parking ramps, and then, above that, an honorific element which looks like a pediment turned upside down and fractured. A modern-day temple front.
It depends whether you believe that the world keeps getting different or that the world recycles. I saw it more like the mouth of the lion or the tiger—there’s a piece hanging over you, which is showering you with flowers or could be a guillotine. You could probably make a case that both ideas have some truth to them.

This building is complex because of the aggregate of simple components. The trick is how you put them together. For example, the western side of the building is, by intention, pulled past the edge of the garage to obviate the scale of the garage and to minimize the automobiles’ context.

It only gives you fragments that let you imagine the larger volume, so there is complexity in the reading of it.
The technical pieces that make each “box” are, as a theoretical proposition, straightforward elements that are used in many buildings with predictable results. But here we’re using something that is understood as a form in a predictable way and producing a very different anomalous spatial result while producing an operationally simple and intelligible interior. So it’s simple, and then it isn’t, and then it is.

There is a moment inside where an I-beam jams into a corner, then flips up and asserts itself into the middle of the workspace. Can we intuit some relationship between that instance and the chaotic order of the Hayden Tract?
I don’t think it’s chaotic. If you’re a little bit patient, there is a sense of how this got to be what it is. I could go through and say this piece belongs to that, this is made out of plastic because of this … but I think that kind of logic belongs in an auditorium lecture. I think it narrows the prospect for architecture.

This is a discussion about culture, about how ideas move, about how architecture can either facilitate content because the client says it has to be that way, or it can interrogate it in some way. This building is both an interrogator and a facilitator of content because it has to be used. One doesn’t have to preclude the other.

Project Credits
Project: Pterodactyl, Culver City, Calif.
Client: Frederick and Laurie Samitaur Smith
Architect: Eric Owen Moss Architects, Culver City, Calif. . Eric Owen Moss, FAIA (principal); Dolan Daggett, Raul Garcia, Zarmine Nigohos, Kyoung Kim, Vanessa Jauregui, Karen Shueh, Scott Nakao, John Bencher, Eugene Glekel, Yi-Hsiu Yeh, Corinna Gebert, Holly Deichmann (project team)
Mechanical Engineer: Fruchtman & Associates
Structural Engineer: Nast Enterprises . Hooman Nastarin
Electrical Engineer: Silver, Roth & Associates
General Contractor: Samitaur Constructs . Peter Brown, Tim Brown, Bo Brown
Furniture/Accessories: Gensler
Size: 16,663 gross square feet

Cost: Withheld


From ARCHITECT December 13, 2012:

Text by Deane Madsen

A Pterodactyl is poised to land in Culver City, Calif., thanks to Eric Owen Moss, FAIA, and his fruitful relationship with developers Frederick and Laurie Samitaur-Smith. Joining the long list of improbably named projects already built in the Hayden Tract district—once an industrial warehouse zone, now an experimental realm Moss has dubbed Conjunctive Points—are Pterodactyl and Waffle. Each of these projects has a rather long history: as Moss puts it, “[Pterodactyl] has been in various stages of debate for 10 years … maybe a little less.” 

Pterodactyl is an office space that will perch atop a structured parking garage just east of Moss’s Stealth building, which was completed in 2002. With the arrival of the Expo line near the site, Moss says that the energy and promise in the area has increased dramatically. Inside Pterodactyl—which is made up of nine rectangular boxes arranged over the top level of the garage—are office facilities, including conference rooms, a library, audiovisual suites, and a cafeteria. Once Pterodactyl is complete, the on-grade parking between it and Stealth will be transformed into a garden space.—Deane Madsen

Upcoming Events

  • Build-to-Rent Conference

    JW Marriott Phoenix Desert Ridge

    Register Now
  • Reimagining Sense of Place: Materiality, Spatial Form, and Connections to Nature

    Webinar

    Register for Free
  • Homes that Last: How Architects Are Designing a Resilient Future

    Webinar

    Register Now
All Events