Promised Land

Project Details

Project Name
Promised Land
Project Types
Shared By
LeahD
Project Status
Built
Size
4,135 ft²
Team
Builder: K. Romeo, Builder

Project Description

Text by Nate Berg

Sag Harbor, N.Y.–based Bates Masi + Architects calls the beachside home they’ve designed in Amagansett, on New York’s Long Island, “a tool for highlighting environmental information.” The key piece of data is wind, and both the building and the landscape are intended to help the homeowners know when conditions are favorable for their preferred diversions of sailing and windsurfing.

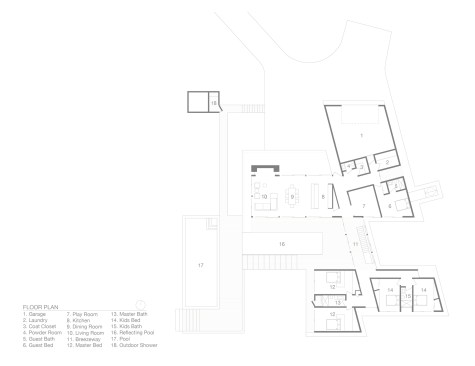
Venting panels tucked under the roof overhangs that line the home’s perimeter pull in the dominant east–west winds, as do large sliding glass doors that surround the living spaces. Exposed glulam wood beams placed between these vents run across the ceiling, ensuring that the passive system is expressed as an integral part of the interior aesthetic.

The home, constructed by K. Romeo, is divided into two wings—the public spaces and the bedrooms, which are connected by a breezeway that can be fully opened to allow near-uninterrupted airflow through the space.

Outside, a reflecting pool tucked between the two wings offers visual clues to the wind conditions, reflecting sunlight off its ripples and through the home’s large windows. Even when the house is sealed tight for winter, it’s still a barometer of the weather outside.

The details of this project hooked me. The scale of the spaces and overall integration are very strong.
— Juror Katherine Hogan

Architect: Bates Masi + Architects
Builder: K. Romeo
Size: 4,135 square feet
Cost: Withheld

Upcoming Events

  • Design Smarter: Leveraging GIS, BIM, and Open Data for Better Site Selection & Collaboration

    Live Webinar

    Register for Free
  • Slate Reimagined: The Surprising Advantages of Slate Rainscreen Cladding

    Webinar

    Register Now
  • The State of Residential Design Today: Innovations and Insights from RADA-Winning Architects

    Webinar

    Register for Free
All Events