Private Residence

Project Details

Project Name
Private Residence
Location
Mt. CharlestonNV
Project Types
Shared By
dmadsen
Project Status
Built
Size
5,658 ft²

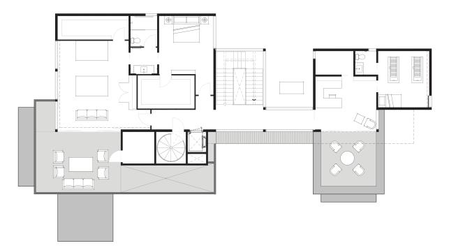
Project Description

The core aspect of the cabin is its function as a retreat, and its soft imprint on the environment. This residence is meant to take a whole new meaning of the cabin with a modern twist. This private residence, located in Mt. Charleston, is three-stories with a roof deck, set into the slope. The home has a functional, well-conceived floor plan that utilizes the available square footage as intelligently as possible, it’s sited to take advantage of natural light and views. The design offers connections throughout to the exterior. One of the challenges to building on the side of a mountain, is having the back side of house buried and not having access to natural light. We solved it by designing a light well so that it would distribute light amongst every floor. We wanted the users to feel as if they were living amongst the trees, and to feel a part of the mountain. Moving from space to space, one sees vast perspectives or framed views of the surrounding environment. Multiple levels create vantage points allowing guests to experience the dramatic site from different elevations and directions and under changing light conditions Full-height windows ensure that the “ground” outside feels connected to the interior. The materials emphasize a horizontality within the massing which relates to the stepping of the form over the slope of the site.

Upcoming Events

  • Build-to-Rent Conference

    JW Marriott Phoenix Desert Ridge

    Register Now
  • Reimagining Sense of Place: Materiality, Spatial Form, and Connections to Nature

    Webinar

    Register for Free
  • Homes that Last: How Architects Are Designing a Resilient Future

    Webinar

    Register Now
All Events