Private Residence

Project Details

Project Name
Private Residence
Project Types
Custom
Project Scope
New Construction
Shared By
Mahesh Rajanala
Project Status
Built
Size
4,500 ft²
Room or Space
Other

Project Description

2003 RADA
Custom / More Than 3,500 Square Feet / Merit

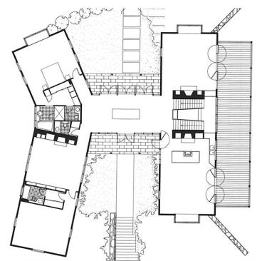
When faced with a site as lovely as this Northern California knoll, most architects wouldn’t be able to resist designing a house that’s just as dramatic. But Turnbull Griffin Haesloop restrained itself, and the result is a house whose intimate relationship to the land won over the judges. “The way it works with the site is terrific,” they said.

The project–the last house Eric Haesloop and Mary Griffin worked on with their late partner, William Turnbull, FAIA–conforms to the contours of the property. A glassed-in entry hall sits at the highest point on the knoll, connecting the home’s two wings. “We wanted the house to both acknowledge and claim the site,” says Haesloop. The entry hall accomplishes the former, as its transparency and elevated location allow the knoll to flow right through it. And the cedar-clad wings on either side firmly establish the home’s claim on the land.

Upcoming Events

  • Design Smarter: Leveraging GIS, BIM, and Open Data for Better Site Selection & Collaboration

    Live Webinar

    Register for Free
  • Slate Reimagined: The Surprising Advantages of Slate Rainscreen Cladding

    Webinar

    Register Now
  • The State of Residential Design Today: Innovations and Insights from RADA-Winning Architects

    Webinar

    Register for Free
All Events