PRD 845

Project Details

Project Name
PRD 845
Location
PhoenixAZ
Architect
Studio Ma
Project Types
Multifamily
Project Scope
New Construction
Shared By
UGC User
Project Status
Built
Year Completed
2007
Size
25,000 ft²

Project Description

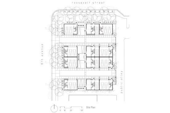
Developed by Greenroof LLC, PRD 845 is an urban infill project in Downtown Phoenix , adjacent to the Roosevelt Historic and Arts Districts. A sensitive cluster of twelve condominium homes, this enclave is organized around two, private “mews” that mix cars and people in an intimate and compelling urban-type environment. Unit sizes range from 900 to 2,200 square feet and are designed to accommodate an active, live-work life style with ground floor garage / studio spaces and large outdoor roof decks with views of downtown Phoenix and the surrounding mountains. The folded roof plane creates volumetric slots through the complex giving PRD its unique, “skyline” profile. Carefully chosen building materials compliment the south-west desert environment and include an innovative rain-screen design wall design made of a low mass, corrugated, fiber-reinforced concrete panels on furring channels that allows accumulated heat to escape through a slot at the top of the wall.

Upcoming Events

  • Build-to-Rent Conference

    JW Marriott Phoenix Desert Ridge

    Register Now
  • Reimagining Sense of Place: Materiality, Spatial Form, and Connections to Nature

    Webinar

    Register for Free
  • Homes that Last: How Architects Are Designing a Resilient Future

    Webinar

    Register Now
All Events